Ковалевич Сергей Константинович

Объекты (4)
- бульвар Генерала Карбышева 8, Склад 28 м²
Москва, бульвар Генерала Карбышева, 8
Цена: 16 600 руб./мес
Общая площадь: 28 м²
Помещение в подвальном этаже, вход с огороженной территории 27,8 метров. По помещению проходят трубы отопления, зимой при включенном отоплении жарко. Окон нет, высота потолка 2,1 метра, пол бетон. есть стеллажи вдоль одной стены, возможно сделать стеллажи над трубами. Ранее хранили архив, возможно д...
- бульвар Генерала Карбышева 8с3, Склад 18 м²
Москва, бульвар Генерала Карбышева, 8с3
Цена: 18 000 руб./мес
Общая площадь: 18 м²
Помещение в цокольном этаже офисного здания. Вход через пункт охраны на территорию офисного центра. Чтобы попасть в помещение нужно подняться на 7 ступенек на уровень первого этажа и вниз спуститься 2 стандартных лестничных марша. Возможна погрузка- разгрузка на территории, в том числе грузовой маши...
- Стрельбищенский переулок 18А, Помещение свободного назначения 10 м²
Москва, Стрельбищенский переулок, 18А
Цена: 21 000 руб./мес
Общая площадь: 10 м²
Предлагается комната практически квадратная, с окном 9,8 метра, рядом общий санузел ( унитаз, раковина. душевая кабина), сейчас полностью свободна без мебели, по договоренности можно поставить шкафы, столы и.т.д. Расположен в цоколе жилого дома, окна в приямке на 3/4, Рассматриваются различные вариа...
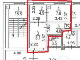
- бульвар Генерала Карбышева 8с3, Офис 25 м²
Москва, бульвар Генерала Карбышева, 8с3
Цена: 1 600 руб./м²/мес
Общая площадь: 25 м²
В офисном здании на 2-м этаже блок из 3-х комнат, две правые по плану комнаты в плитке, высота потолка 3,6 метра, железная дверь, есть вентиляция, стеклопакет, современные светильники, свежая косметика. Имеется разводка слаботочки и розеток по рабочим местам. В здание есть ресторан. Круглосуточ...
Контакты
Написать сообщениеООО "Гильдия на Полежаевской"
http://gildiana.ru-
+7 (903) 629-22-90
8 495 925-0510





