Аренда офиса, 327 м² , улица Бутырский Вал 68/70с1
Площадь: 327 м²
Цена аренды:
1 035 500 руб./мес
Цена:
3 167 руб./м²/мес

улица Бутырский Вал, дом
68/70с1,
Москва,
Россия
м. Савеловская (6 мин.)
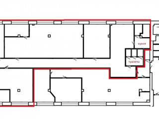
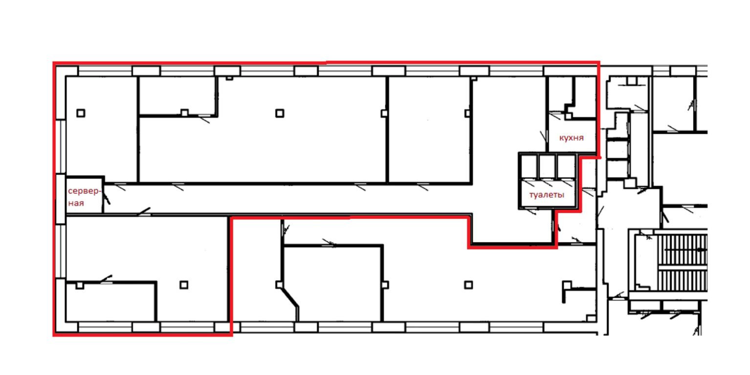
Об объекте
- Этаж расположения помещения
- 2 этаж
- Административный округ
- Центральный административный округ
Описание объекта
==ЛОТ 222396 ==В аренду предоставляется офисное помещение с комбинированной планировкой. В здании функционирует приточно-вытяжная вентиляционная система, обеспечивающая циркуляцию воздуха. Также установлено центральное кондиционирование для поддержания оптимального микроклимата. Объект оборудован современной пожарной сигнализацией, соответствующей требованиям безопасности.
улица Бутырский Вал, дом 68/70с1, Москва, Россия
Цена аренды:
1 035 500 руб./мес
Общая площадь:327 м²









