Продажа помещения свободного назначения, 778 м² , улица Горького 60
Площадь: 778 м²
Цена продажи:
27 862 000 руб.
Цена:
35 813 руб./м²

улица Горького, дом
60,
Белгород,
Белгородская область
- Контактные данные
- +7 (930) 37X-XX-XX
Описание объекта
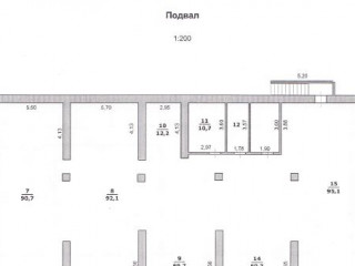
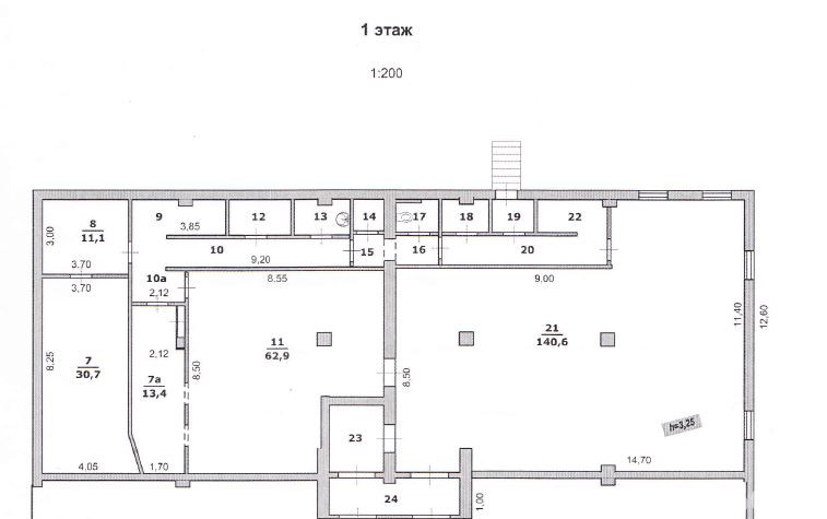
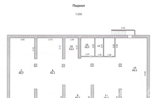
Продается нежилое помещение площадью 777.9 кв.м. Местоположение: Белгородская область, г. Белгород, ул. Горького, д. 60 Кадастровый номер: 31:16:0101001:9934 Номер, тип этажа, на котором расположено помещение, машино-место: Этаж № подвал, 1 Вид, номер, дата и время государственной регистрации права: Собственность 31:16:0101001:9934-31/001/2019-3 от 24.10.2019 Ограничение прав и обременение объекта недвижимости: не зарегистрировано. Год постройки - 1981. Материал стен кирпичные. Планировка смешанная. Высота потолков - 3,25 м. Основное назначение - производственное помещение. Вход в помещение отдельный с улицы. Доступ в помещение - свободный. Общее состояние помещения - требуется капитальный ремонт. Коммуникации центральные. Парковка - стихийная. Находится в шаговой доступности от общественных мест (магазинов, садов, школ и прочее) и в хорошем районе. Отличная транспортная развязка: рядом остановка общественного транспорта. Звоните в рабочее время, будем рады оперативно ответить на любые вопросы.[#8113817#]
улица Горького, дом 60, Белгород, Белгородская область
Цена:
27 862 000 руб.
35 813 руб./м²
Общая площадь:778 м²







