Продажа помещения свободного назначения, 248 м² , Каслинская улица 34
Площадь: 248 м²
Цена продажи:
27 000 000 руб.
Цена:
108 871 руб./м²

Каслинская улица, дом
34,
Челябинск,
Россия
- Контактные данные
- +7 (958) 60X-XX-XX
Описание объекта
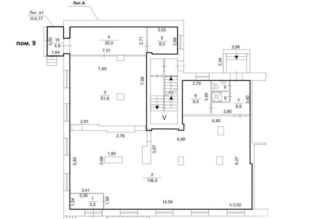
Продается коммерческое помещение 248,2 м2 на оживленной улице. Собственник.
Адрес: Челябинская обл., г. Челябинск, ул. Каслинская, д. 34.
Цена: 28 900 000 руб. (или по запросу).
Ключевые характеристики объекта:
Площадь: 248,2 м2.
Входы: 3 отдельных входа — с улицы, со двора и в зону разгрузки.
Помещение: Выполнен качественный ремонт. Полы — керамогранит, потолки — "Армстронг" 3 м. Большие высокие окна.
Коммуникации: Санузел и душевая — раздельные. Электрика полностью разведена по всем зонам.
Особенности: Установлены стеклянные перегородки (легко демонтируются), что позволяет быстро зонировать пространство под кабинеты или торговые залы.
Готовое бизнес-место в сложившейся инфраструктуре:
В здании уже работают: салоны красоты, «Красное&Белое», столовая, «Вайлдберриз».
В шаговой доступности (ключевой трафик обеспечен):
Магазины: «Пятерочка», «Магнит» (гипермаркет).
Пункты выдачи заказов (ПВЗ): OZON, Яндекс Маркет.
Услуги: стоматология, «Все Инструменты», рынок «Каслинский».
Пересечение оживленных магистралей: ул. Кирова, Свердловский проспект, проспект Победы. Высокий пешеходный и автомобильный трафик.
Идеальное назначение:
Торговля (розничный магазин любого профиля)
Офисы (сразу готовы к работе)
Производство или склад (есть зона разгрузки)
Пункт выдачи заказов (ПВЗ)
Салон услуг (красота, здоровье)
Контакты:
Собственник. Для просмотра и обсуждения условий.[#8058113#]
Каслинская улица, дом 34, Челябинск, Россия
Цена:
27 000 000 руб.
108 871 руб./м²
Общая площадь:248 м²



























