Аренда помещения свободного назначения, 204 м² , Трамвайный пер 2к3
Площадь: 204 м²
Цена аренды:
203 000 руб./мес
Цена:
996 руб./м²/мес

Трамвайный пер, дом
2к3,
Екатеринбург,
Россия
- Контактные данные
- +7 (343) 38X-XX-XX
Об объекте
- Район
- Железнодорожный
Описание объекта
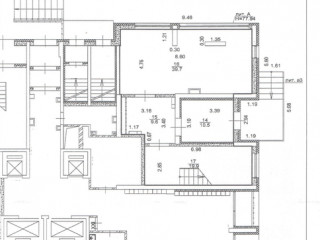
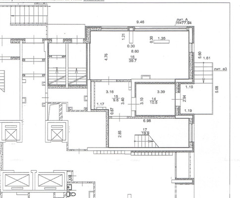
Помещение 204.0 м2. Сдам помещение свободного назначения с отдельным входом.
Общая площадь 204кв.м. разделена на два этажа. Несколько отдельных кабинетов различной площади, зона открытого пространства, ресепшен + несколько подсобных помещений и сан узел.
В помещении много естественного освещения, высокие потолки, подъезд для разгрузки на тротуаре около входной группы. Возможно размещение рекламной вывески на фасаде здания. Установлены отдельные кондиционеры, система вытяжной вентиляции, светодиодное освещение. Парковка на прилегающей территории и у ТЦ Магнит Экстра.
Коммунальные платежи оплачиваются дополнительно, установлены теплосчетчики.
Написать представителю
Андрей Фионов
Ваша информация в безопасности.
Она будет отправлена только контактному лицу данного объявления.
Трамвайный пер, дом 2к3, Екатеринбург, Россия
Цена аренды:
203 000 руб./мес
Общая площадь:204 м²






















