Аренда помещения свободного назначения, 203 м² , Колмогорова ул 5к1
Площадь: 203 м²
Цена аренды:
283 000 руб./мес
Цена:
1 395 руб./м²/мес

Колмогорова ул, дом
5к1,
Екатеринбург,
Россия
- Контактные данные
- +7 (343) 38X-XX-XX
Описание объекта
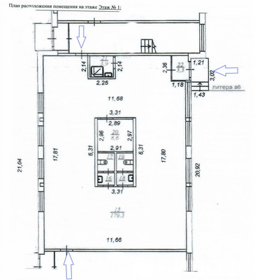
Помещение 202.9 м2. Сдам просторное помещение с отдельным входом.
Здание расположено на ул. Колмогорова, 5к1, первая линия, рядом с жилым массивом и плотным авто трафиком.
Удобная логистика — парковка перед зданием, возможность разгрузки через запасной выход.
✅ Площадь — 202 м², 1-й этаж отдельно стоящего административного здания.
✅ Основной вход с фасада + 2 запасных выхода в сторону парковки (удобно для разгрузки).
✅ Современный фасад — презентабельно для клиентов, а рекламу хорошо видно с дороги.
✅ Большие витражные окна по фасаду — отличная естественная освещенность и возможность брендирования.
✅ Высота потолков более 3 м, свободная планировка — легко делится на кабинеты или открытые зоны.
✅ Подключено к центральным сетям, приточно-вытяжная вентиляция, пожарная сигнализация. Возможна разводка воды/канализации в любую часть помещения.
✅ Помещение в предчистовой отделке — готово под ваш дизайн и концепцию.
? Отдельный вход в нежилом здании, отлично подойдет для:
— Медицинского центра, стоматологии, лаборатории с лицензией
— IT-офиса, офиса продаж, шоурума
— Кофейни, пекарни, пищевого производства
— Салона красоты, косметологии
— Учебного центра или детского развития
? Гибкие условия аренды
— Возможны арендные каникулы под ремонт
— Прямая аренда от собственника
Помещение свободно, готовы обсудить условия сделки.
Создайте пространство, которое будет работать на ваш бренд!
Написать представителю
Андрей Фионов
Ваша информация в безопасности.
Она будет отправлена только контактному лицу данного объявления.
Колмогорова ул, дом 5к1, Екатеринбург, Россия
Цена аренды:
283 000 руб./мес
Общая площадь:203 м²















