Аренда помещения свободного назначения, 554 м² , Колмогорова ул 5к1
Площадь: 554 м²
Цена аренды:
676 100 руб./мес
Цена:
1 221 руб./м²/мес

Колмогорова ул, дом
5к1,
Екатеринбург,
Россия
- Контактные данные
- +7 (343) 38X-XX-XX
Описание объекта
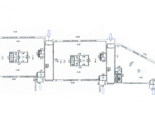
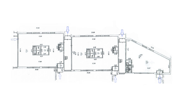
Помещение 553.6 м2. Сдам помещение в нежилом здании с отдельным входом на первом этаже.
Общая площадь 536.6 кв.м., разделена на 3 обособленных помещения 202/ 202/ 148 кв.м.
В каждое из помещений имеется основной вход с фасада + запасной выход в сторону парковки (удобно для разгрузки).
Современный фасад — презентабельно для клиентов, а рекламу хорошо видно с дороги.
Большие панорамные окна по фасаду — отличная естественная освещённость и возможность брендирования. Высота потолков более 3 м, свободная планировка — легко делится на кабинеты или открытые зоны. Подключено к центральным сетям, приточно-вытяжная вентиляция, пожарная сигнализация. Возможна разводка воды/ канализации в любую часть помещения.
Помещение в предчистовой отделке — готово под ваш дизайн и концепцию.
Отдельный вход в нежилом здании, отлично подойдёт для: медицинского центра, стоматологии, лаборатории с лицензией. IT-офиса, офиса продаж, шоу-рума. Кофейни, пекарни, пищевого производства. Салона красоты, косметологии. Учебного центра или детского развития.
Гибкие условия аренды. Возможны арендные каникулы под ремонт.
Прямая аренда от собственника. Помещение свободно, готовы обсудить условия сделки. Создайте пространство, которое будет работать на ваш бренд!
Написать представителю
Андрей Фионов
Ваша информация в безопасности.
Она будет отправлена только контактному лицу данного объявления.
Колмогорова ул, дом 5к1, Екатеринбург, Россия
Цена аренды:
676 100 руб./мес
Общая площадь:554 м²














