Аренда помещения свободного назначения, 30 м² , Шейнкмана ул 86
Площадь: 30 м²
Цена аренды:
50 000 руб./мес
Цена:
1 667 руб./м²/мес

Шейнкмана ул, дом
86,
Екатеринбург,
Россия
- Контактные данные
- +7 (343) 38X-XX-XX
Описание объекта
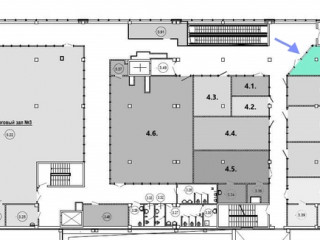
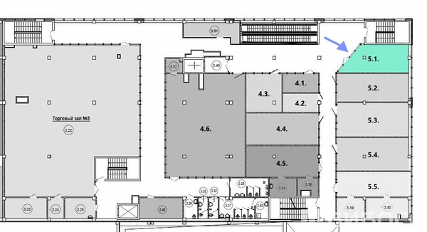
Помещение 30.0 м2. Объект N 197489.
Сдам помещение свободного назначения, офис.
Площадь в виде единого зала, стеклянные перегородки, потолок грильято, установлено светодиодное освещение.
Расположено в торговой галереи на 3ем этаже, есть лифт, можно подняться по эскалатору. Самое первое помещение на этаже, угловое расположение, окна выходят прямо на дорогу, возможно размещение светодиодной вывески в окнах и на фасаде.
Отлично подойдёт для шоурума, магазина, небольшого офиса продаж. Практически круглосуточный доступ, парковка городская вдоль улицы, рядом весь городской транспорт в любой конец города.
Написать представителю
Андрей Фионов
Ваша информация в безопасности.
Она будет отправлена только контактному лицу данного объявления.
Шейнкмана ул, дом 86, Екатеринбург, Россия
Цена аренды:
50 000 руб./мес
Общая площадь:30 м²















