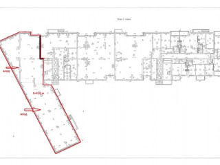
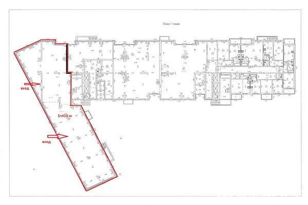
Аренда магазина, 410 м² , Татищева ул 177
Площадь: 410 м²
Цена аренды:
500 000 руб./мес
Цена:
1 220 руб./м²/мес

Татищева ул, дом
177,
Екатеринбург,
Россия
- Контактные данные
- +7 (343) 38X-XX-XX
Об объекте
- Район
- Верх-Исетский
Описание объекта
Помещение 410.0 м2. Сдам в аренду на длительный срок торговое помещение, площадью 410 кв. метров на Визе.
Технические характеристики: 1 этаж, отдельная входная группа, высота потолка 4 метров, панорамное остекление фасада, место под вывеску, заведенная мощность 45 Квт., сделан ремонт: пол керамогранит, потолок армстронг, возможность перепланировки под Ваш бизнес.
Инфраструктура: активно развивающийся микрорайон: Новый ЖК «Здоровье», парковка свободная у Помещения, хороший пешеходный трафик.
Финансовые условия: 1220 рублей за кв. метр с НДС. К/У и Электроэнергия оплачиваются дополнительно.
Рассмотрим любые варианты использования: магазин, пекарня, аптека, услуги для населения. Звоните, договоримся.
Написать представителю
Андрей Фионов
Ваша информация в безопасности.
Она будет отправлена только контактному лицу данного объявления.
Татищева ул, дом 177, Екатеринбург, Россия
Цена аренды:
500 000 руб./мес
Общая площадь:410 м²

















