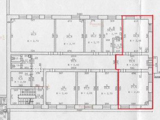
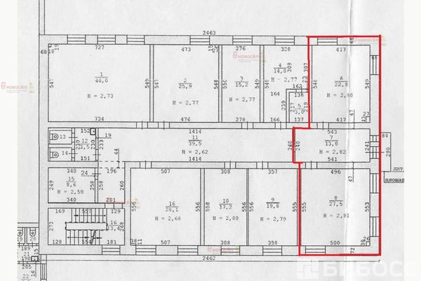
Продажа офиса, 63 м² , Труда ул 10
Площадь: 63 м²
Цена продажи:
44 310 руб.
Цена:
704 руб./м²

Труда ул, дом
10,
Екатеринбург,
Россия
- Контактные данные
- +7 (343) 38X-XX-XX
Об объекте
- Район
- Верх-Исетский
Описание объекта
Помещение 63.3 м2. Сдам в аренду офис в Верх- Исетском районе. Расположен на втором этаже, общая площадь - 63,3 кв. м. Офис состоит из трех помещений. Территория круглосуточно охраняется, доступ контролируется. Есть кондиционер. НДС включен в стоимость. Комиссия для арендатора не предусмотрена. Буду рад ответить на все вопросы по телефону!
Написать представителю
Андрей Фионов
Ваша информация в безопасности.
Она будет отправлена только контактному лицу данного объявления.
Труда ул, дом 10, Екатеринбург, Россия
Цена:
44 310 руб.
704 руб./м²
Общая площадь:63 м²










