Аренда офиса, 19 м² , Труда ул 10
Площадь: 19 м²
Цена аренды:
15 520 руб./мес
Цена:
817 руб./м²/мес

Труда ул, дом
10,
Екатеринбург,
Россия
- Контактные данные
- +7 (343) 38X-XX-XX
Об объекте
- Район
- Верх-Исетский
Описание объекта
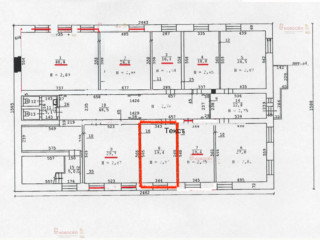
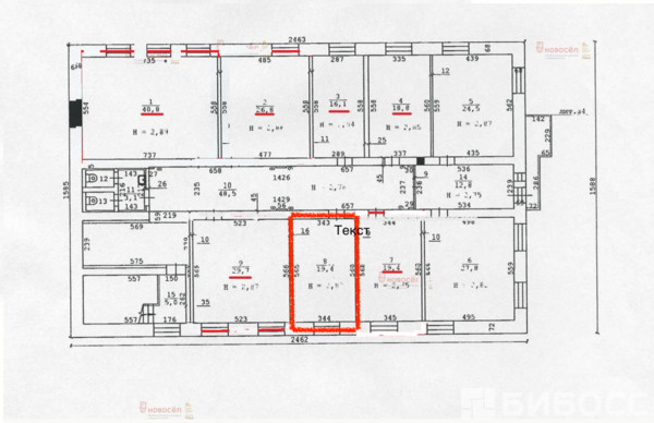
Помещение 19.4 м2. Сдам в аренду офис в Верх-Исетском районе. Расположен на третем этаже, общая площадь - 19,4 кв. м. Территория круглосуточно охраняется, доступ контролируется. НДС включен в стоимость. Комиссия для арендатора не предусмотрена. Буду рад ответить на все вопросы по телефону!
Написать представителю
Андрей Фионов
Ваша информация в безопасности.
Она будет отправлена только контактному лицу данного объявления.
Труда ул, дом 10, Екатеринбург, Россия
Цена аренды:
15 520 руб./мес
Общая площадь:19 м²












