Продажа помещения свободного назначения, 500 м² , улица Ленина 8
Площадь: 500 м²
                                   Цена продажи:
                                        40 000 000 руб.
                                Цена:                                 
                                    80 000 руб./м²

 улица Ленина, дом
                        8,
                        Горячий Ключ,
                    Краснодарский край
улица Ленина, дом
                        8,
                        Горячий Ключ,
                    Краснодарский край
- Контактные данные
- +7 (958) 48X-XX-XX
Описание объекта
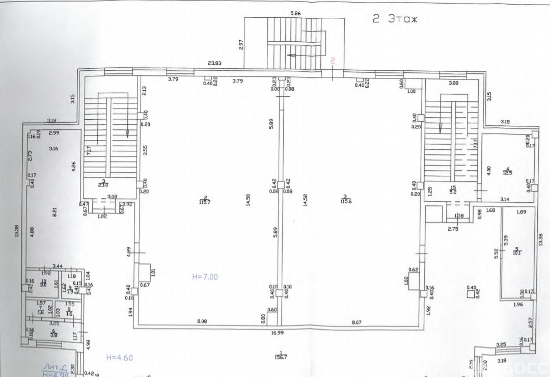
Продается кинотеатр на два зала. Много дополнительных площадей под сферу услуг. Новое здание. Кинотеатр очень нужен городу. Горожанам и отдыхающим гостям города приходится ездить за 70 км. Помещение свободного назначения площадью 500 м2, предоставляется юридический адрес. Помещение располагается в 3-этажном административном здании класса A, находится на 2 этаже здания. 
Возможное назначение - прочее, высота потолков 7 м, внутри типовой ремонт, 4 мокрые точки, тип окон - витринные, окна выходят окна во двор и на улицу. В помещении интернет, телефон. 
Общая площадь здания 1400 м2, здание находится на участке 0.6 га, год постройки 2021, участок находится в собственности, здание полностью функционирует. 
Внутри центральное кондиционирование, вентиляция - приточная, автономное отопление, система пожаротушения, внутри есть водоснабжение. 
Отдельный вход с улицы, доступ в здание свободный, здание открыто круглосуточно. 
Парковка автомобилей - наземная, парковка на 20 машиномест, из них 20 предоставляются в пользование, есть гостевые места, парковка предоставляется бесплатно.[#7612523#]
улица Ленина, дом 8, Горячий Ключ, Краснодарский край
                            Цена:
                            40 000 000 руб.
80 000 руб./м²
                            Общая площадь:500 м² 







