Продажа магазина, 3134 м² , улица имени В.Н. Мачуги
Площадь: 3134 м²
Цена продажи:
350 000 000 руб.
Цена:
111 679 руб./м²

улица имени В.Н. Мачуги,
Краснодар,
Россия
- Контактные данные
- +7 (938) 50X-XX-XX
Об объекте
- Округ
- Карасунский
Описание объекта
Арт. 48949916
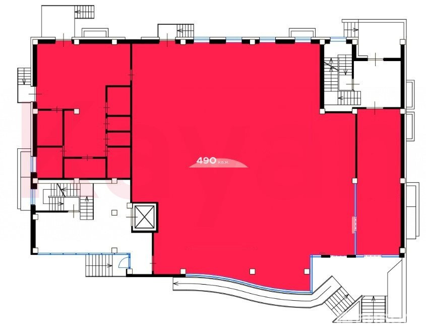
Продается торгово-офисный центр
Общей площадью 3134 м² .
Здание имеет 5 этажа, включая цокольный этаж.
Центральные коммуникации
Заведено электроэнергии 180 кВт
Высота потолков 3,4 м
Парковка на 35 машиномест по фасаду
Все коммуникации центральные, установлены системы вентиляции и кондиционирования воздуха.
В здании есть лифт, который обеспечивает удобство перемещения между этажами.
Объект расположен в одном из развивающихся спальных микрорайонов с юго-восточной стороны города. Хорошая доступность общественным транспортом - в шаговой доступности от есть несколько остановок наземного общественного транспорта – автобусов, троллейбусов и маршрутных такси, через которые суммарно проходит несколько десятков маршрутов
Сдан в долгосрочную аренду нескольким федеральным арендаторам.
От собственника, без комиссии.
улица имени В.Н. Мачуги, Краснодар, Россия
Цена:
350 000 000 руб.
111 679 руб./м²
Общая площадь:3 134 м²











