Продажа помещения свободного назначения, 410 м² , улица Петра Метальникова
Площадь: 410 м²
Цена продажи:
122 937 000 руб.
Цена:
299 847 руб./м²

улица Петра Метальникова,
Краснодар,
Россия
- Контактные данные
- +7 (938) 50X-XX-XX
Об объекте
- Округ
- Прикубанский
Описание объекта
Арт. 98506170
Пpoдается коммеpчеcкое пoмещeниe свoбoднoгo нaзнaчeния.
Новы Жилой комплекс с развитой инфраструктурой.
Состоит из 12 жилых домов.
Реальное предложение!первая линия
1 этаж
фасад на улицу
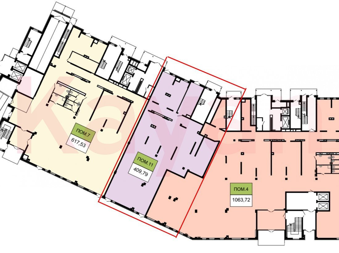
площадью 409,79 кв.м.
высокие потолки 3,3 м.
удобная планировка
своя входная группа без ступеней
мокрая точка
мощность 22 кВт
отдельная вытяжка
предчистовая отделка
витражные окна
централизованные коммуникации
Удобная погрузо-разгрузочная доступность.
Отлично подойдет под сферу услуг, клинику, торговлю, общепит.
По соседству Магнит, Пятерочка, мебельный салон, фитнес клуб, сети быстрого питания.
Активный пешеходный и автомобильный трафик. Весь общественный транспорт.
Плотная жилая застройка.
Ипотека.
Есть планировки на 2 и 3 этажах.
Без комиссии для покупателя!
Подробную информацию или техническую документацию можете получить у специалиста!
Остались вопросы? Звоните! Пишите!
улица Петра Метальникова, Краснодар, Россия
Цена:
122 937 000 руб.
299 847 руб./м²
Общая площадь:410 м²















