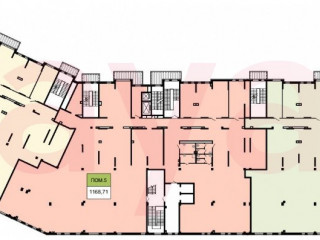
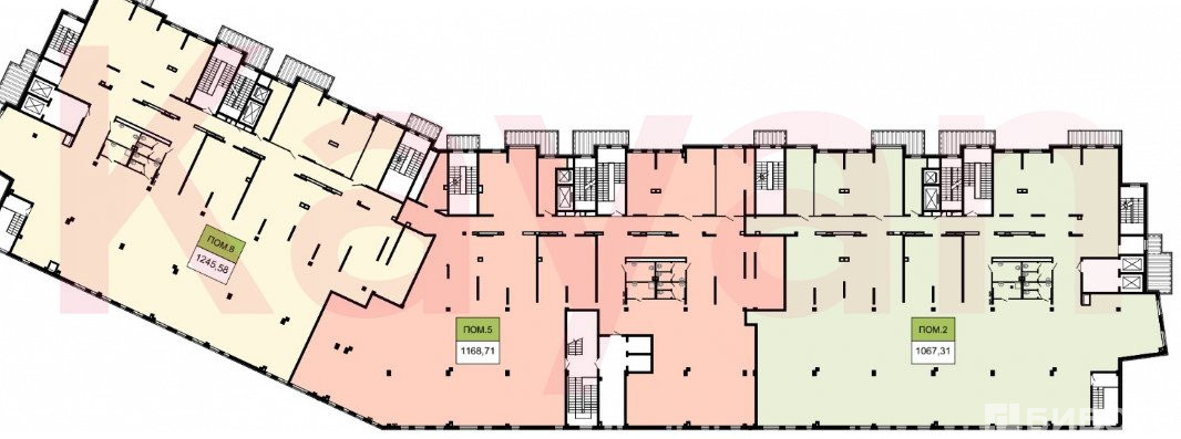
Аренда помещения свободного назначения, 1107 м² , Российская улица
Площадь: 1107 м²
Цена аренды:
1 660 000 руб./мес
Цена:
1 500 руб./м²/мес

Российская улица,
Краснодар,
Россия
- Контактные данные
- +7 (938) 50X-XX-XX
Об объекте
- Округ
- Прикубанский
Описание объекта
Арт. 106787860
сдается коммеpчеcкое пoмещeниe свoбoднoгo нaзнaчeния.
Новы Жилой комплекс с развитой инфраструктурой.
Состоит из 12 жилых домов.
Реальное предложение!
первая линия
Встроенно-пристроенное помещение
2 этаж,лифт
фасад на улицу
площадью 1107 кв.м.
высокие потолки 3,6 м.
удобная планировка
мокрые точки
мощность 22 кВт
предчистовая отделка
Витражное остекление
дом сдан
централизованные коммуникации
Удобная погрузо-разгрузочная доступность.
Отлично подойдет под торговлю, общепит.
сферу услуг, клинику.
Активный пешеходный и автомобильный трафик.
Рядом остановки общественного транспорта.
Плотная жилая застройка.
4004 квартир ,
весь комплекс сдается в этом году.
Российская улица, Краснодар, Россия
Цена аренды:
1 660 000 руб./мес
Общая площадь:1 107 м²









