Аренда помещения свободного назначения, 133 м² , Школьная улица
Площадь: 133 м²
Цена аренды:
266 000 руб./мес
Цена:
2 000 руб./м²/мес

Школьная улица,
Краснодар,
Россия
- Контактные данные
- +7 (938) 50X-XX-XX
Об объекте
- Округ
- Прикубанский
Описание объекта
Арт. 113461791
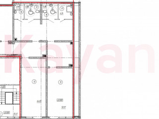
Сдаются в аренду 2 коммерческох помещения в ЖК Сердце общей площадью 133 кв. м (можно объединить )
Фасад выходит на улицу Школьную
Две входные группы
Место пол вывеску
Площадь помещений 60,1 кв. м и 72 кв. м
Высота потолка 4 метра
Планировка смешанная
Электричество 15 кВт ( с возможностью увеличения )
В помещениях установлены сплит системы
Ремонт оговаривается с арендатрм индивидуально .
Гибкая система оплаты аренды ( постепенное повышение )
В приоритете долгосрочный договор аренды от 5 лет
Показ в удобное для вас время
Без комисси со стороны арендатора
Школьная улица, Краснодар, Россия
Цена аренды:
266 000 руб./мес
Общая площадь:133 м²










