Аренда склада, 424 м² , Продольно-Кукушкинская улица 14
Площадь: 424 м²
Цена аренды:
250 000 руб./мес
Цена:
590 руб./м²/мес

Продольно-Кукушкинская улица, дом
14,
Казань,
Россия
- Контактные данные
- +7 (992) 70X-XX-XX
Об объекте
- Район
- Приволжский
Описание объекта
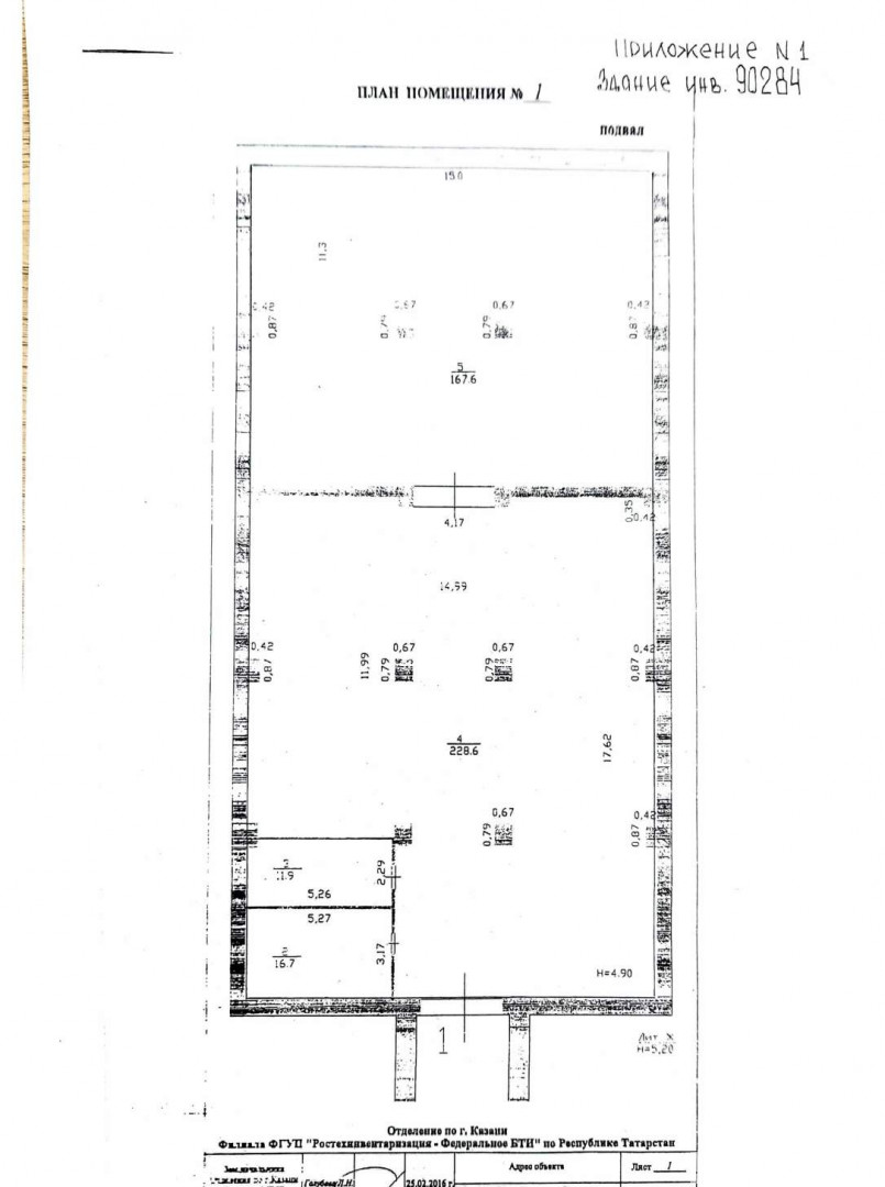
Сдам в аренду склад площадью 424 кв.м в субаренду на любой срок, с возможностью арендных каникул. Склад располагается в 2-этажном здании в 8 мин. транспортом от м.Яшьлек, юридический адрес не предоставляется.
Склад располагается на -1 этаже, бетонный пол. Внутри типовой ремонт, вход в помещение - общий с улицы, общая площадь здания 423.999 м2, участок находится в аренде, здание полностью функционирует, здание охраняется.
На складе есть электричество, вентиляция - естественная, нет отопления, пожарная сигнализация, парковка предоставляется бесплатно, ворота докового типа.
Лифтовое оборудование: нет грузовых лифтов, нет лифтов тельфер, нет пассажирских лифтов,.[#7976140#]
Продольно-Кукушкинская улица, дом 14, Казань, Россия
Цена аренды:
250 000 руб./мес
Общая площадь:424 м²













