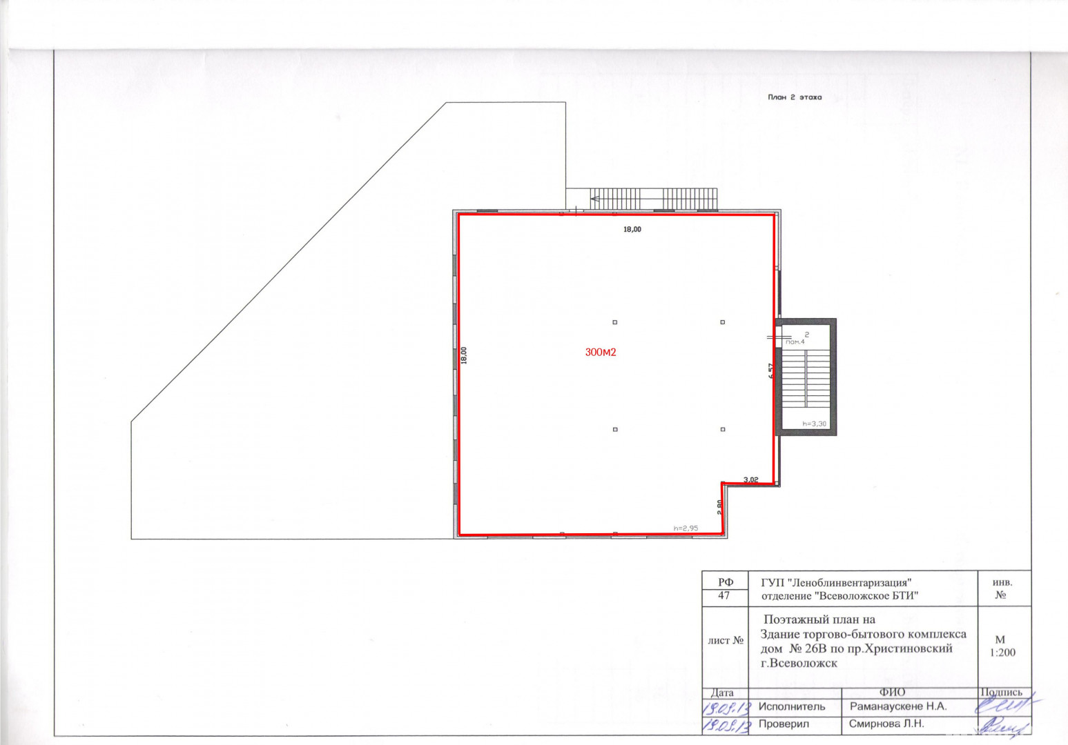
Аренда магазина, 300 м² , Христиновский проспект 26В
Площадь: 300 м²
Цена аренды:
240 000 руб./мес
Цена:
800 руб./м²/мес

Христиновский проспект, дом
26В,
Всеволожск,
Ленинградская область
- Контактные данные
- +7 (923) 89X-XX-XX
Описание объекта
Предложение от СОБСТВЕННИКА!
Сдается в аренду помещение в Торговом комплексе:
300 кв. м - (2 этаж) - аренда 240 000 руб./мес.
Среди арендаторов Фикс Прайс, Улыбка Радуги, Аптека Невис и другие.
Собственная парковка, круглосуточная охрана, удобная зона загрузки разгрузки товаров.
Возможны арендные каникулы и индивидуальные условия договора.[#6392239#]
Христиновский проспект, дом 26В, Всеволожск, Ленинградская область
Цена аренды:
240 000 руб./мес
Общая площадь:300 м²













