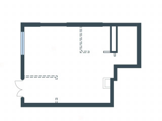
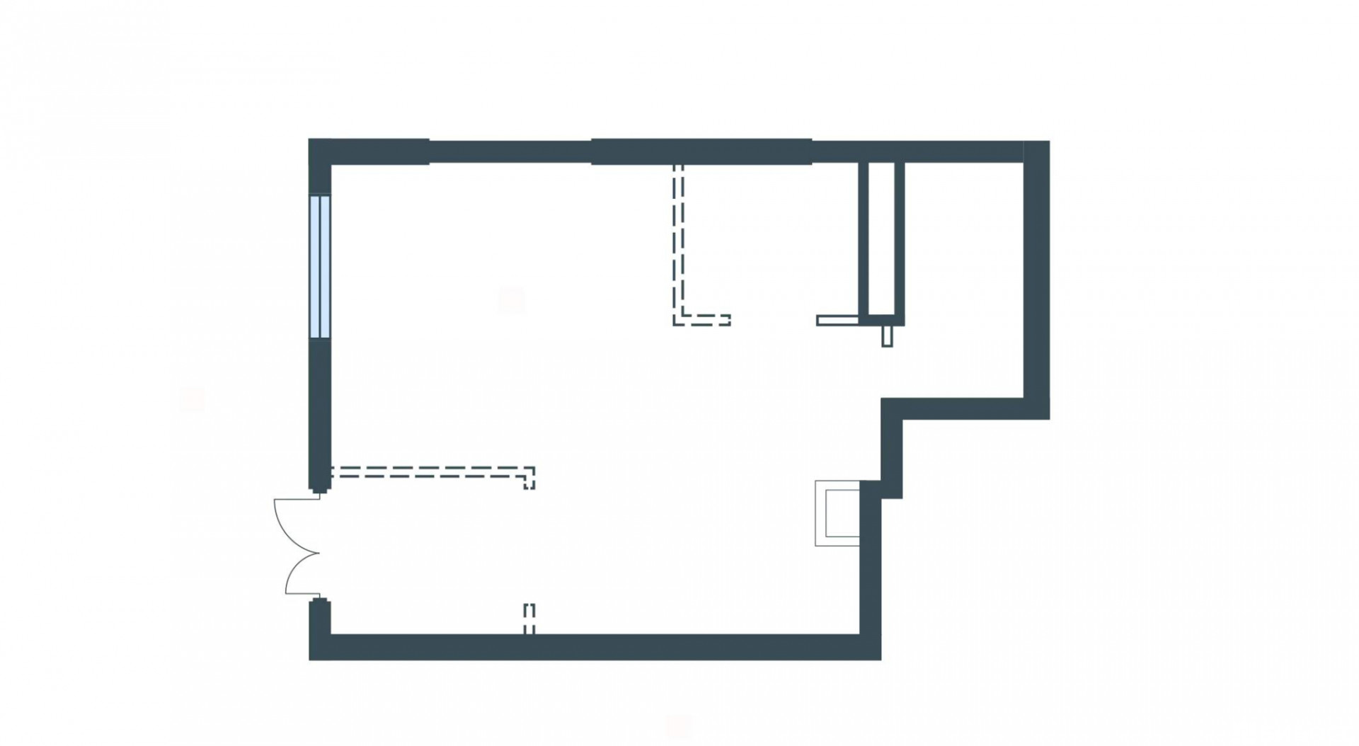
Аренда помещения свободного назначения, 43 м² , Александровская улица 4
Площадь: 43 м²
Цена аренды:
66 805 руб./мес
Цена:
1 554 руб./м²/мес

Александровская улица, дом
4,
Красногорск,
Московская область
- Контактные данные
- +7 (495) 02X-XX-XX
Описание объекта
Сдаётся в аренду коммерческое помещение площадью 43,1 м на 1-м этаже 25-этажного жилого дома в ЖК «Ильинойс».
Основные преимущества:
отдельный вход;
место под вывеску;
витринное остекление;
круглосуточный доступ;
помещение без ремонта, что позволяет обустроить его по своему вкусу и требованиям бизнеса;
помещение находится в жилом комплексе комфорт-класса;
развитый район с насыщенной инфраструктурой и активным пешеходным трафиком.
Технические характеристики: наличие всех необходимых коммуникаций: водоснабжение, канализация, электроснабжение. Выделенная мощность - 8,6 кВт.
Условия: помещение предоставляется без посредников, напрямую от собственника - компании «Аструм Недвижимость», которая управляет коммерческой инфраструктурой жилых комплексов ГК «Гранель».
ЖК «Ильинойс» сочетает авторскую архитектуру, современные инженерные решения и развитую инфраструктуру в окружении живописной природы. Территория благоустроена: закрытые дворы «без машин», детские и спортивные площадки. Проект включает два детских сада на 450 мест, парковки, систему видеонаблюдения и авторскую навигацию. Первая очередь строительства рассчитана на 2695 квартир.
ЖК находится в 5 минутах от МКАД, рядом со станцией МЦД-2 «Красногорская». В перспективе - открытие станции метро «Ильинская» новой Рублево-Архангельской линии. Поблизости школы, детсады, поликлиники, ТРЦ «РигаМолл», парки и акватория Москвы-реки в 20 минутах ходьбы. На первых этажах комплекса размещены коммерческие помещения с отдельными входами, местами под вывески и круглосуточным доступом. Площади от 36 до 426 кв. м предлагаются без отделки, что дает возможность оформить их по индивидуальным требованиям.
Наши менеджеры помогут вам подобрать наиболее подходящее помещение для вашего бизнеса. Звоните и узнайте подробности![#6488642#]
Александровская улица, дом 4, Красногорск, Московская область
Цена аренды:
66 805 руб./мес
Общая площадь:43 м²















