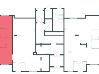
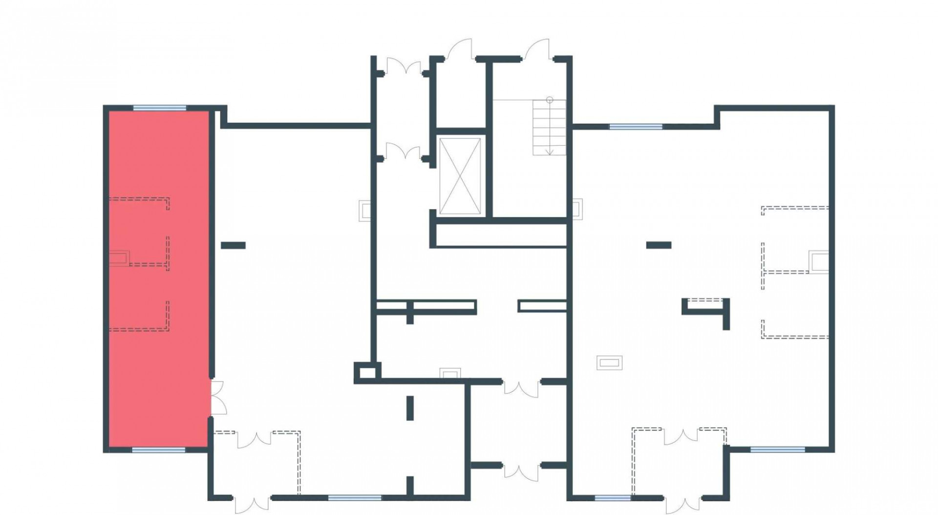
Аренда помещения свободного назначения, 45 м² , улица Сергея Жадобкина 3
Площадь: 45 м²
Цена аренды:
85 880 руб./мес
Цена:
1 909 руб./м²/мес

улица Сергея Жадобкина, дом
3,
Николо-Урюпино,
Московская область
- Контактные данные
- +7 (495) 02X-XX-XX
Описание объекта
ЖК «Аникеевский» - жилой экокомплекс на северо-западе Подмосковья, в городском округе Красногорск. Уютный малоэтажный квартал расположился в 12 км от МКАД, между Новорижским и Волоколамским шоссе.
В ЖК «Аникеевский» введено в эксплуатацию десять домов на 1857 квартир. Многие семьи уже справили новоселье. Для автомобилей здесь предусмотрены парковки. Построены детский сад на 315 мест и поликлиника для жителей комплекса - на 130 посещений в смену.
Девелопер ГК «Гранель» приступил к реализации и второй очереди проекта, которая состоит из 14-этажных корпусов.
Недалеко от объекта расположена станция МЦД-2 «Аникеевка». Современные поезда курсируют каждые 5-10 минут, на них можно с комфортом доехать до станций метро «Волоколамская» и «Тушинская», в этом же направлении движутся маршрутные автобусы. В перспективе на этом направлении откроются станции метро новой Рублево-Архангельской ветки, которая пройдет через Строгино и Хорошево-Мневники до станции метро и БКЛ «Шелепиха».
Одно из главных преимуществ проекта - расположение в экологически чистом месте, в окружении реликтового хвойного леса. Свежий воздух, наполненный ароматом сосен, формирует уникальный микроклимат, который помогает сохранить здоровье и бодрость. Комплекс соединяет все плюсы загородной жизни и современного городского комфорта.
«Аникеевский» великолепно подходит для семей с детьми. Для жителей созданы безопасные дворы с детскими и спортивными площадками, малыми архитектурными формами, а также зонами отдыха. На территории расположатся магазины, кафе, пункты услуг, небольшие офисы.[#7512320#]
улица Сергея Жадобкина, дом 3, Николо-Урюпино, Московская область
Цена аренды:
85 880 руб./мес
Общая площадь:45 м²








