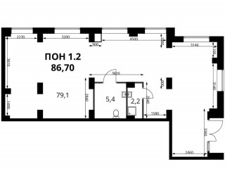
Продажа помещения свободного назначения, 87 м² , улица Фруктовые Сады 1
Площадь: 87 м²
Цена продажи:
24 055 939 руб.
Цена:
276 506 руб./м²

улица Фруктовые Сады, дом
1,
Тарычево,
Московская область
- Контактные данные
- +7 (495) 15X-XX-XX



























