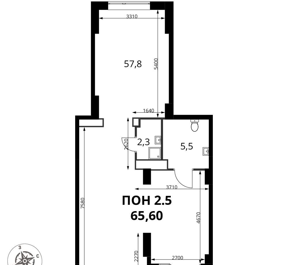
Продажа помещения свободного назначения, 66 м² , улица Фруктовые Сады 1
Площадь: 66 м²
Цена продажи:
20 197 632 руб.
Цена:
306 025 руб./м²

улица Фруктовые Сады, дом
1,
Тарычево,
Московская область
- Контактные данные
- +7 (495) 15X-XX-XX





























