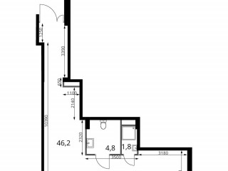
Продажа помещения свободного назначения, 53 м² , Комсомольская улица 16
Площадь: 53 м²
Цена продажи:
17 493 440 руб.
Цена:
330 065 руб./м²

Комсомольская улица, дом
16,
Химки,
Московская область
- Контактные данные
- +7 (495) 15X-XX-XX





























