Аренда помещения свободного назначения, 700 м² , Зелёная улица 1
Площадь: 700 м²
Цена аренды:
1 001 000 руб./мес
Цена:
1 430 руб./м²/мес

Зелёная улица, дом
1,
Долгопрудный,
Московская область
Об объекте
- Этаж расположения помещения
- 1 этаж
Описание объекта
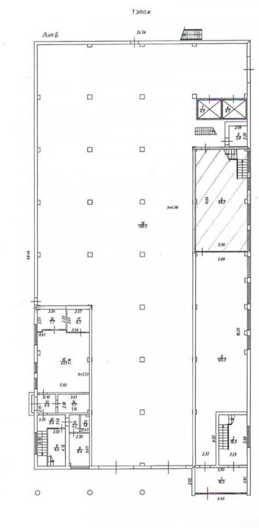
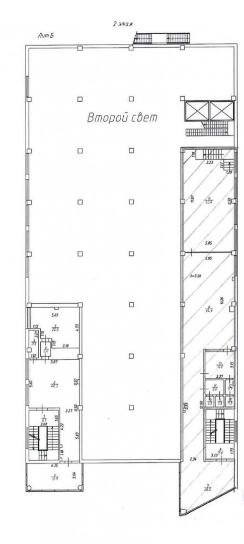
==ЛОТ 223616 == ОТ СОБСТВЕННИКА, БЕЗ КОМИССИИ. Помещение свободного назначения в Московская область, Долгопрудный Зеленая ул., 1 (700 м). Предлагается для аренды все 4 этажа (есть возможность аренды по частям, от 30 м2). 1430 р/м2 в месяц. Отличная транспортная доступность. 2 км oт MKAД, Mетро Физтeх 10 минут на тpанспopтe, дo aэрoпорта Шepeмeтьево 12 км, дo остaновoк oбщeствeннoго тpaнспоpтa 800 метpoв. Коммунальные платежи: электричество оплачивается по счетчику. 1 этаж - 68. 20 м 2 этаж - 205, 8 м 3 этаж - 292, 6 м 4 этаж - 115, 6 м Оперативный показ.
Зелёная улица, дом 1, Долгопрудный, Московская область
Цена аренды:
1 001 000 руб./мес
Общая площадь:700 м²



















