Аренда производственного помещения, 8184 м² , Белокаменное шоссе вл10/2
Площадь: 8184 м²
Цена аренды:
11 594 000 руб./мес
Цена:
1 417 руб./м²/мес

Белокаменное шоссе, дом
вл10/2,
Видное,
Московская область
Об объекте
- Этаж расположения помещения
- 1 этаж
Описание объекта
==ЛОТ 223765 == ОТ СОБСТВЕННИКА, БЕЗ КОМИССИИ. Предлагаем в аренду производственно-складское помещение расположенное на территории ПСК "Мосмек". Адрес: г. Видное (Московская область), Белокаменное ш., вл10/2.
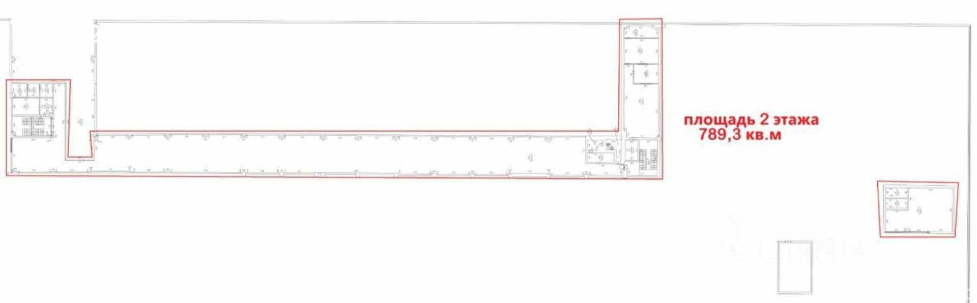
Общая площадь: 8 184 кв.м. Из них: 1- й этаж 7 394 кв.м.; 2-й этаж 789,3 кв.м.
Высота потолка: 8 метров.
Ворота 4 шт. (3*4); уровень - 0;
Полы антипыль.
Помещение оборудовано с/у.
Электрическая мощность: 30 кВт, возможностью увеличения есть.
Отопление от собственной газовой котельной мощностью 30 Гкал/час.
Водоснабжение- водозаборный узел 2000 м3/сутки.
Территория огороженная, пропускная система. Охрана по периметру. Круглосуточный въезд (платный).
Пожарная сигнализация: порошковая.
На территории работает круглосуточно профессиональная управляющая компания, для оперативного решения всех вопросов.
Стоянка для легкового и грузового транспорта, перед корпусами — площадки для маневрирования большегрузных автомобилей.
Провайдеры на объекте (интернет, телефония) Мегафон, Пролинк.
Комплекс обладает превосходной транспортной доступностью: 5 км от МКАД, 1 км до Каширского шоссе, 6 км до трассы М-4 Дон
В ставку включен НДС. Отдельно оплачиваются к/у.
Белокаменное шоссе, дом вл10/2, Видное, Московская область
Цена аренды:
11 594 000 руб./мес
Общая площадь:8 184 м²


















