Аренда помещения свободного назначения, 350 м² , улица Ленина 25А
Площадь: 350 м²
Цена аренды:
945 000 руб./мес
Цена:
2 700 руб./м²/мес

улица Ленина, дом
25А,
Красногорск,
Московская область
Об объекте
- Этаж расположения помещения
- 1 этаж
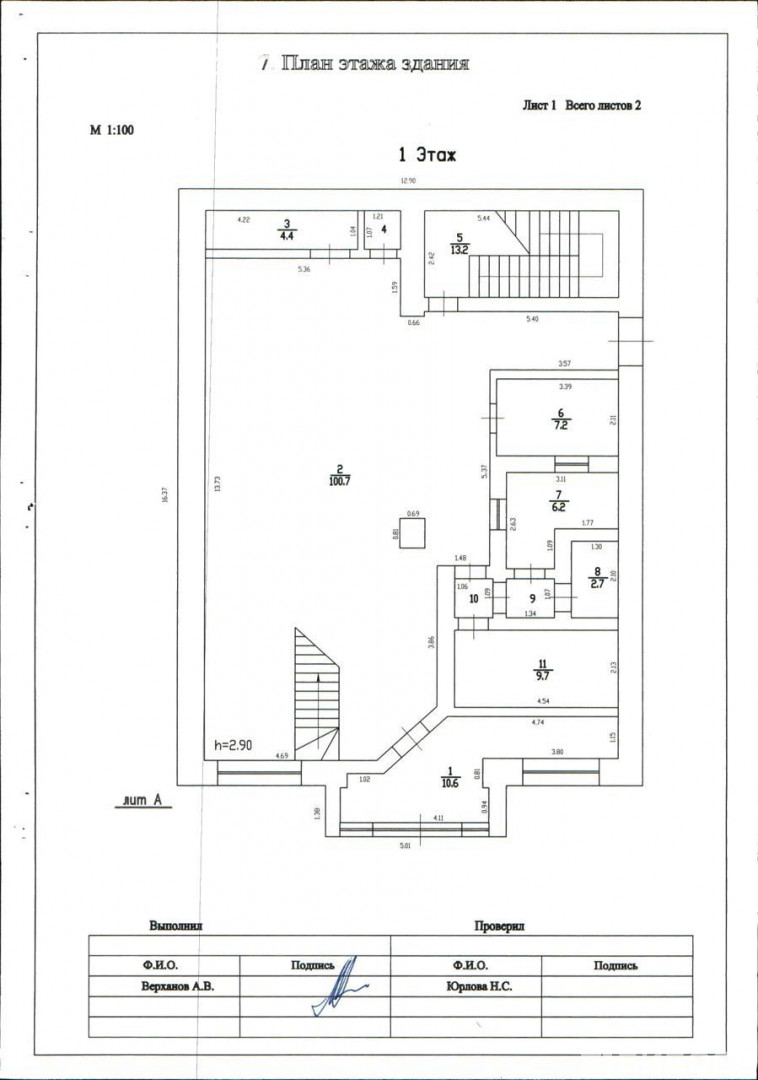
Описание объекта
==ЛОТ 223845 == ОТ СОБСТВЕННИКА, БЕЗ КОМИССИИ. Сдаем в долгосрочную аренду помещение свободного назначения в центре Красногорска, расположенное по адресу улица Ленина, 25А. Объект находится на первой линии с высоким пешеходным и автомобильным трафиком, что обеспечивает отличную видимость и доступность. Общая площадь составляет 350 кв. м с высотой потолков 3 м, что позволяет разнообразно организовать пространство. Помещение оборудовано всем необходимым: центральные коммуникации, электрическая мощность до 100 кВт, приточная вентиляция, сигнализация и местное кондиционирование. Возможны два входа и отдельная зона для разгрузки, что делает его идеальным для различного бизнеса, таких как медицинский центр, кафе, магазин, офис...... Витринные окна обеспечивают хорошую освещенность и позволяют привлекать внимание клиентов. Можно организовать летнюю веранду (согласованно). Рядом расположены популярные места, такие как Красногорская набережная и магазины, что создаёт дополнительный поток потенциальных клиентов. Удобный подъезд на автомобиле и наличие собственной парковки, на 20 машиномест, делают объект привлекательным как для арендаторов, так и для покупателей. Прямой договор с собственником гарантирует прозрачность сделки. Оперативный показ, быстрый выход на сделку, каникулы на въезд.
улица Ленина, дом 25А, Красногорск, Московская область
Цена аренды:
945 000 руб./мес
Общая площадь:350 м²











