Аренда производственного помещения, 700 м² , Главная улица 18Б
Площадь: 700 м²
Цена аренды:
770 000 руб./мес
Цена:
1 100 руб./м²/мес

Главная улица, дом
18Б,
Дедовск,
Московская область
- Контактные данные
- +7 (934) 00X-XX-XX
Описание объекта
Прямая долгосрочная аренда готового производственного комплекса под ключ от 350 кв.м.
г. Дедовск, ул. Гагарина, д. 18Б
ОБЪЕКТ: Многофункциональное 4-этажное производственное здание с цокольным и мансардным этажами, 2009 г. постройки.
1. ОСНОВНЫЕ ПАРАМЕТРЫ:
Площадь земельного участка: 3 080 кв.м (более 30 соток), полностью огорожен.
Архитектура: 4 этажа + цоколь + мансарда.
Год постройки: 2009 (современные стандарты).
Арендная ставка: 1000 рублей в месяц за кв.м.
Форма аренды: Прямая, от собственника, на длительный срок.
Оформление: Нотариальный договор аренды с обязательной регистрацией в Росреестре (гарантия юридической чистоты). Полный пакет технической документации.
2. УНИКАЛЬНАЯ ИНФРАСТРУКТУРА НА ТЕРРИТОРИИ (ВКЛЮЧЕНО В СТАВКУ):
КПП (контрольно-пропускной пункт).
Теплый склад: 259,5 кв.м с навесом.
Холодный склад: 150 кв.м.
Погрузочно-разгрузочный пандус.
3. КОММУНИКАЦИИ И СИСТЕМЫ (ЦЕНТРАЛЬНЫЕ, МОЩНЫЕ):
Электричество: 400 кВт – мощность для любого производства.
Водоснабжение, канализация, отопление – центральные.
Вентиляция: принудительная приточно-вытяжная (уже установлена).
Пожарная безопасность: система пожарной сигнализации.
Грузовые лифты: 2 штуки, обслуживают маршрут от цокольного до 3-го этажа.
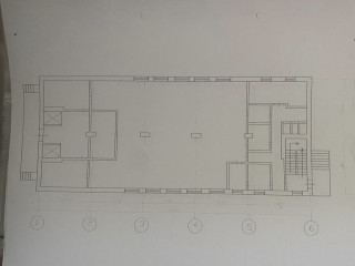
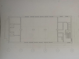
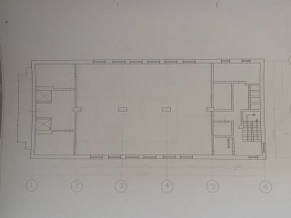
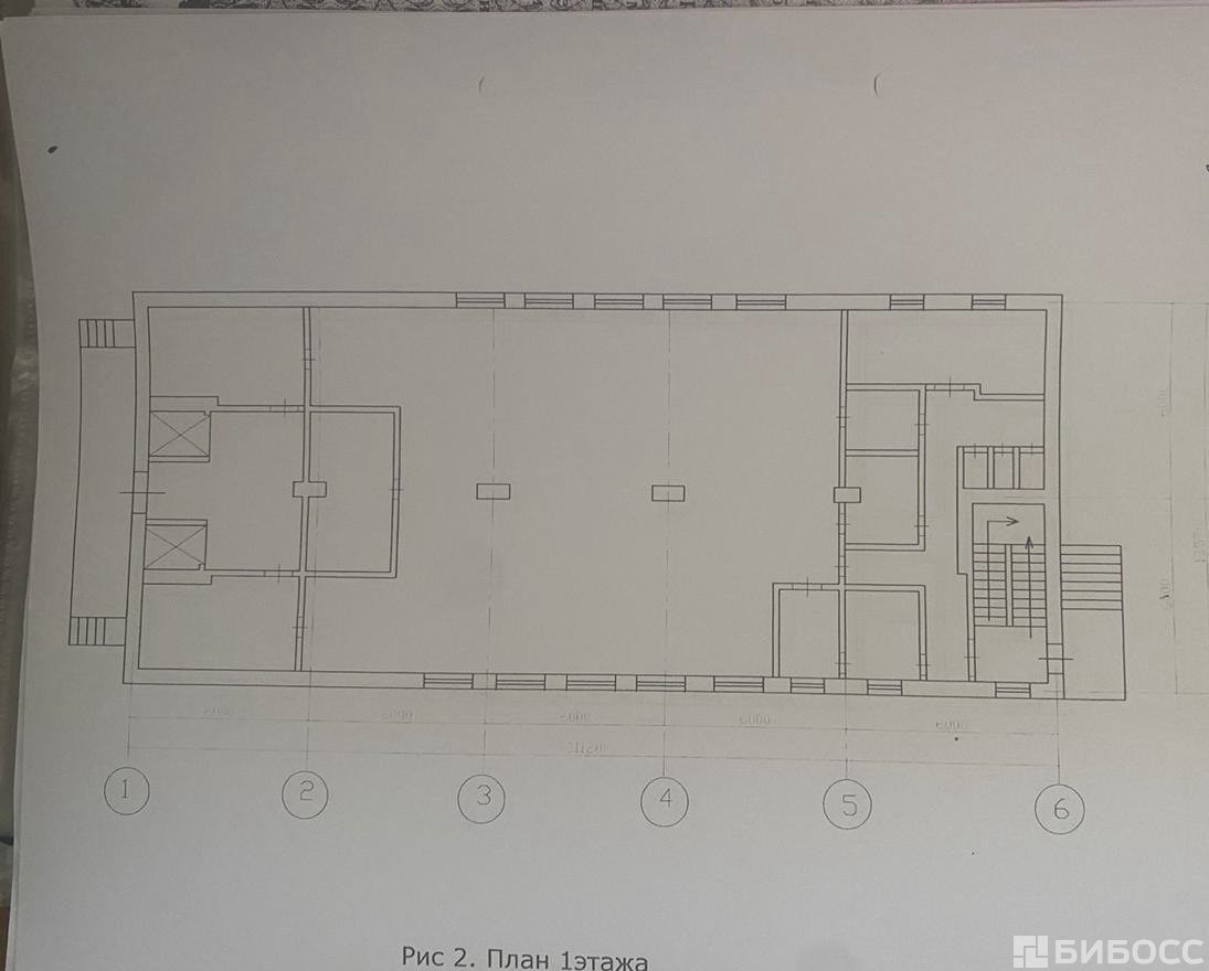
4. ПЛАНИРОВКА И НАЗНАЧЕНИЕ ПОМЕЩЕНИЙ:
Цокольный этаж: складские и подсобные помещения, раздевалка, лифтовая.
1-й этаж: производственный цех, столовая, раздевалки, кабинет, санузлы, склады, лифтовой холл.
2-й этаж: производственный цех, кабинет, столовая, санузлы, склады, лифтовой холл.
3-й этаж: производственный цех, кабинет, столовая, санузлы, склады, лифтовой холл.
Мансардный этаж: административно-офисные помещения (готовый head-офис).
5. ДОПОЛНИТЕЛЬНОЕ ОБОРУДОВАНИЕ (ОПЦИОНАЛЬНО, НА ВЫБОР АРЕНДАТОРА):
Готовая инфраструктура для пищевого, косметического, химического производства: фасовочное, варочное, этикетировочное оборудование, линии розлива и укупорки. Возможна продажа/передача в аренду.
Иное технологическое оборудование – по согласованию.
6. КЛЮЧЕВЫЕ ПРЕИМУЩЕСТВА ДЛЯ ИНВЕСТОРА:
Готовый комплекс:
Максимальная законность: Регистрация в Росреестре защищает арендатора на весь срок.
Беспрецедентная мощность: 400 кВт и 2 грузовых лифта решают главные логистические и технологические задачи.
Разделение потоков: Четкое зонирование (цех, склады, офис, бытовки) повышает эффективность.
Развитая территория: Собственные вспомогательные склады и КПП.
Объект доступен для просмотра.
Рассматриваются предложения от производственных компаний, инвесторов и фондов для долгосрочного партнерства.[#8006123#]
Главная улица, дом 18Б, Дедовск, Московская область
Цена аренды:
770 000 руб./мес
Общая площадь:700 м²

























