Аренда склада, 750 м² , Промышленная улица 13
Площадь: 750 м²
Цена аренды:
1 350 000 руб./мес
Цена:
1 800 руб./м²/мес

Промышленная улица, дом
13,
Лосино-Петровский,
Московская область
Об объекте
- Этаж расположения помещения
- 1 этаж
Описание объекта
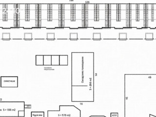
==ЛОТ 224409 == ОТ СОБСТВЕННИКА, БЕЗ КОМИССИИ. Предлагается в аренду склад. Площадь: 750 м?.Температурный режим: стабильное поддержание температуры в диапазоне от -18°С до -25°С. Система безопасности: интегрированная сигнализация, активируемая в случае отключения электроэнергии.Дополнительные меры безопасности: круглосуточная охрана, система видеонаблюдения, строго контролируемый пропускной режим.Удобство эксплуатации: ровный пол, обеспечивающий беспрепятственное движение погрузочной техники, удобный подъезд для транспортных средств.
Промышленная улица, дом 13, Лосино-Петровский, Московская область
Цена аренды:
1 350 000 руб./мес
Общая площадь:750 м²



