Продажа производственного помещения, 24300 м² , проезд № 5500 4с6
Площадь: 24300 м²
Цена продажи:
3 037 925 000 руб.
Цена:
125 018 руб./м²

проезд № 5500, дом
4с6,
Рузино,
Московская область
- Контактные данные
- +7 (495) 08X-XX-XX
Описание объекта
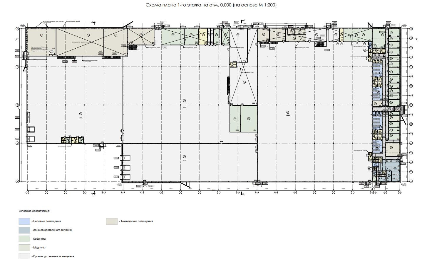
Объект представляет собой современное одноэтажное производственное здание Класса А, общей площадью 24,3 тыс. м2 с высокой инженерной оснащённостью и отличной логистикой, расположенное в сформировавшемся промышленно-складском кластере северного направления Москвы.
Максимально быстрый переезд - готовность к запуску 1 квартал 2026 г.
Расположение и логистика:
г. Зеленоград (инфраструктура и доступ к квалифицированной рабочей силе)
17 км от МКАД по Ленинградскому шоссе, недалеко от аэропорта Шереметьево
удобный съезд на Фирсановское шоссе, 1,8 км от Ленинградского шоссе
1,8 км до МЦД «Фирсановская»
первая линия Фирсановского шоссе, удобный заезд на участок
Основные характеристики:
площадь земельного участка- 4,45 га
эффективная площадь застройки- 48,5%
широкий спектр кодов ВРИ: 6.2, 6.2.1, 6.3, 6.3.1, 6.4, 6.5, 6.6, 6.11
паркинг 20 грузовых, 63 легковых м/м
Конструктивные характеристики объекта:
одноэтажное здание, высота потолков - 8 м
эффективный шаг колонн 2412 м
нагрузка на пол до 6 т/м2
бетонный пол с антипылевым покрытием
фасад- трехслойные сэндвич-панели
Инженерная инфраструктура:
электрическая мощность до 60 Вт/м2 с возможностью увеличения по запросу Клиента
собственная газовая котельная
теплоснабжение 1,5 Гкал/час
водоснабжение 24,2 м/сутки
класс энергоэффективности А[#8073533#]
проезд № 5500, дом 4с6, Рузино, Московская область
Цена:
3 037 925 000 руб.
125 018 руб./м²
Общая площадь:24 300 м²












