Продажа производственного помещения, 605 м² , Спас-Каменка кп 1
Площадь: 605 м²
Цена продажи:
90 736 500 руб.
Цена:
149 978 руб./м²

Спас-Каменка кп, дом
1,
Спас-Каменка,
Московская область
- Контактные данные
- +7 (495) 01X-XX-XX
Описание объекта
Продается новое производственно-складское помещение по Дмитровскому шоссе - ICPARK КЛЮЧ.
Назначение:
под производство и склад
Продажа осуществляется напрямую от собственника парка, что гарантирует отсутствие каких-либо комиссий и скрытых платежей!
Объект расположен в северном направлении с выездом на Дмитровское шоссе (4 км). Расстояние от МКАД - 30 км.
Координаты: 56.148996, 37.449949
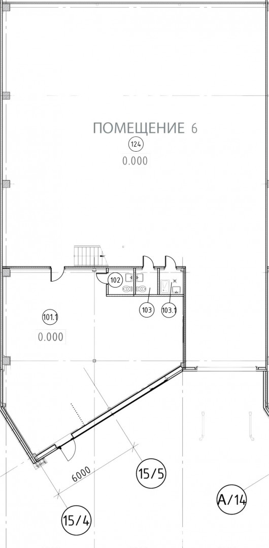
Формат Point. Блок А, Бокс 6.
Планировочное решение включает в себя пространство для производства, склад или логистику 356,85 кв.м, а также офисную часть 120,60 кв.м.
Наличие мезонина.
ОСНОВНЫЕ ХАРАКТЕРИСТИКИ:
- Класс: A
- Температура: Сухой склад
- Автоматическая спринклерная система пожаротушения
- Высота: 8 м
- Нагрузка на пол: 5 т/кв.м
- Высококачественные бетонные полы с антипылевым покрытием и упрочняющим слоем
- Сетка колонн: 12x24
- Ворота: докового типа и на нулевой отметке
КОММУНИКАЦИИ:
- Электричество: 25 кВт (возможно увеличение мощности)
- Вентиляция: приточно-вытяжная
- Водоснабжение, канализация
- Индивидуальные приборы учета
ИНФРАСТРУКТУРА:
- Парковки для транспорта: для грузовых авто — 2 места, для легкового авто — 4 места
- Доступ к производственно-складским помещениям 24/7
- Охраняемая территория
- Видеонаблюдение
- Скоростной интернет и телефония
ДОПОЛНИТЕЛЬНО:
- Собственная профессиональная управляющая компания
- Клининг
- Консьерж-сервис
- Мобильное приложение
- Маркетплейс услуг
- Кафе на территории
- Зоны отдыха и спортивные площадки
Готовы предоставить подробную информацию и организовать просмотр![#8075099#]
Спас-Каменка кп, дом 1, Спас-Каменка, Московская область
Цена:
90 736 500 руб.
149 978 руб./м²
Общая площадь:605 м²







