Продажа помещения свободного назначения, 1706 м² , Советская улица
Площадь: 1706 м²
Цена продажи:
170 000 000 руб.
Цена:
99 649 руб./м²

Советская улица,
Раменское,
Московская область
- Контактные данные
- +7 (499) 35X-XX-XX
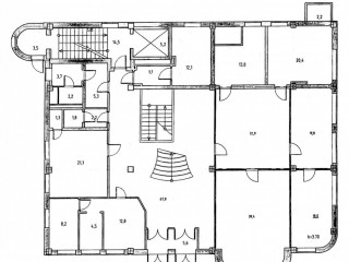
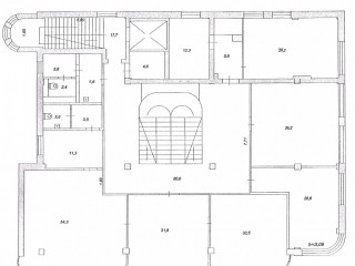
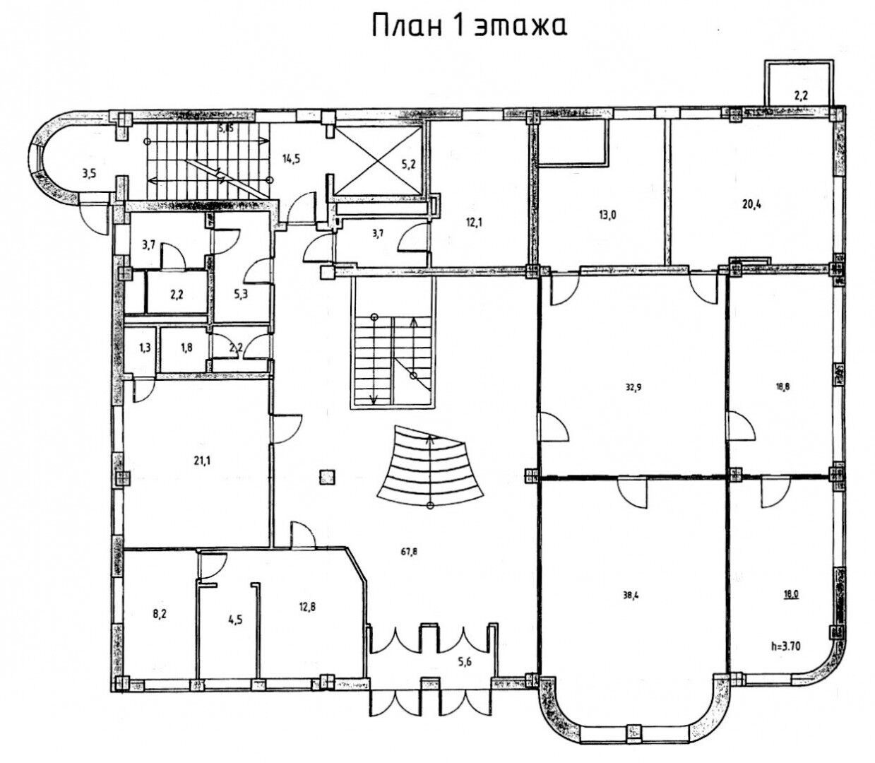
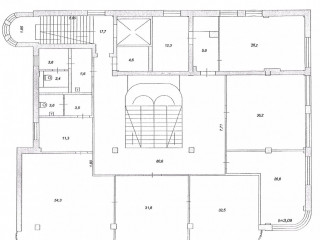
Об объекте
- Этаж расположения помещения
- 5 этаж
- Этажность дома
- 5 этажей
Описание объекта
Арт. 129940179
Вам нужен простор, монументальность и готовность бизнес центра к работе? Этот вариант для вас.
Расположение здания обеспечивает удобство и для ваших сотрудников и для ваших клиентов: пешая доступность от станции Раменское (5 минут), несколько автобусных остановок в шаговой доступности (от 2-х до 5 минут).
Здание в отличном состоянии.Наличие лифта упрощает перемещение между этажами.
Кабинеты оборудованы мебелью. Помимо кабинетов на основных четырёх этажах, в цокольном этаже, в распоряжении ваших сотрудников будет тренажёрный зал, баня, бассейн.
Входная группа оборудована пропускной системой, охрана расположена в специально отведённом помещении.
Земельный участок 18,2 сотки в собственности. Территория огорожена, там вы и ваши сотрудники можете парковать свои авто (охрана и видеонаблюдение круглосуточное). Летом можно устраивать небольшие перерывы в работе отдыхая у фонтана.
Подробности при встрече. Показы по предварительной договорённости.
Возможно перепрофилирование здания под гостиницу, медицинский центр.
Написать представителю
Андрей Хромов
Ваша информация в безопасности.
Она будет отправлена только контактному лицу данного объявления.
Советская улица, Раменское, Московская область
Цена:
170 000 000 руб.
99 649 руб./м²
Общая площадь:1 706 м²










