Аренда помещения свободного назначения, 171 м² , Парковая улица 42к1
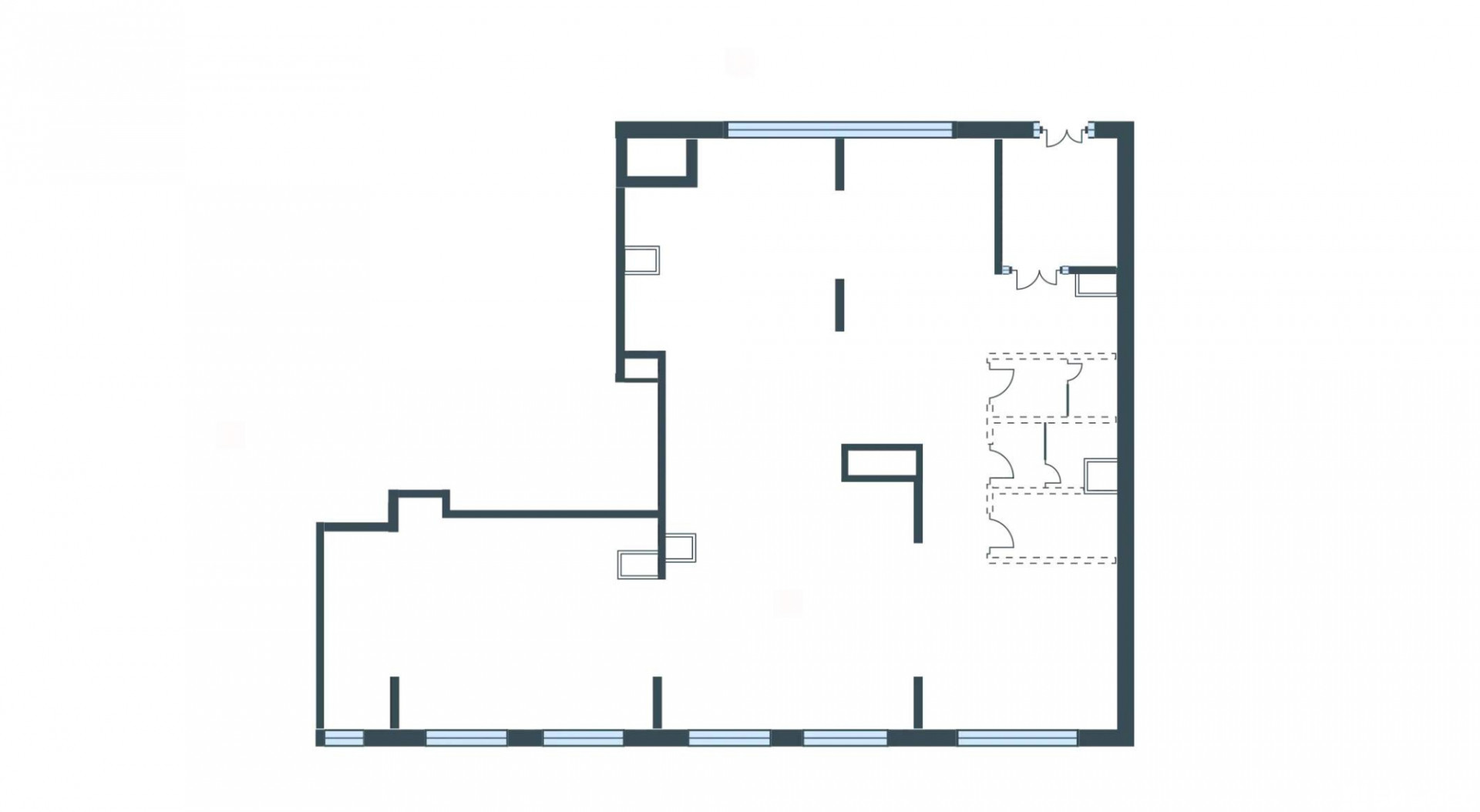
Площадь: 171 м²
Цена аренды:
221 910 руб./мес
Цена:
1 298 руб./м²/мес

Парковая улица, дом
42к1,
Долгопрудный,
Московская область
- Контактные данные
- +7 (495) 02X-XX-XX
Описание объекта
ЖК «Бригантина» - модерновый комплекс уровня «комфорт» в Долгопрудном. Город считается не только самым молодым в Подмосковье, но и перспективным, благодаря современной инфраструктуре и близкому соседству со столицей.
Тринадцать домов из четырнадцати возведены и сданы в эксплуатацию. Строится еще один жилой корпус.
В комплексе создана собственная развитая инфраструктура с социально-бытовыми и торговыми объектами. На первых этажах заселенных домов открыты магазины, кафе, пекарни, аптеки и салоны красоты, сдан в эксплуатацию многоуровневый наземный паркинг на 813 машино-мест.
Здесь уже построены в общей сложности четыре дошкольных учреждения на 570 мест, детская поликлиника на 95 посещений в смену. Также ведется строительство еще одного встроенно-пристроенного детского сада для 135 малышей и взрослой поликлиники на 95 посещений в смену.
Для города Долгопрудный ГК «Гранель» возводит отдельно-стоящее здание родильного дома и нового корпуса школы №7 на 1500 учащихся.
В ЖК «Бригантина» доступны в аренду и под продажу помещения на первых этажах жилых домов с отдельными входными группами, витринным остеклением, всеми коммуникациями и местами под вывески.[#8016911#]
Парковая улица, дом 42к1, Долгопрудный, Московская область
Цена аренды:
221 910 руб./мес
Общая площадь:171 м²












