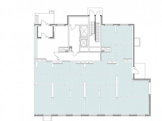
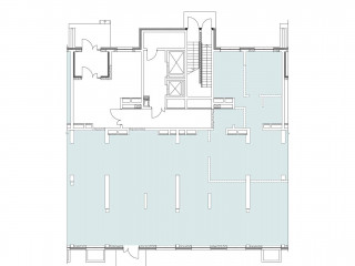
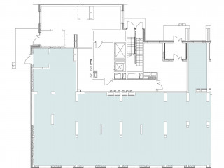
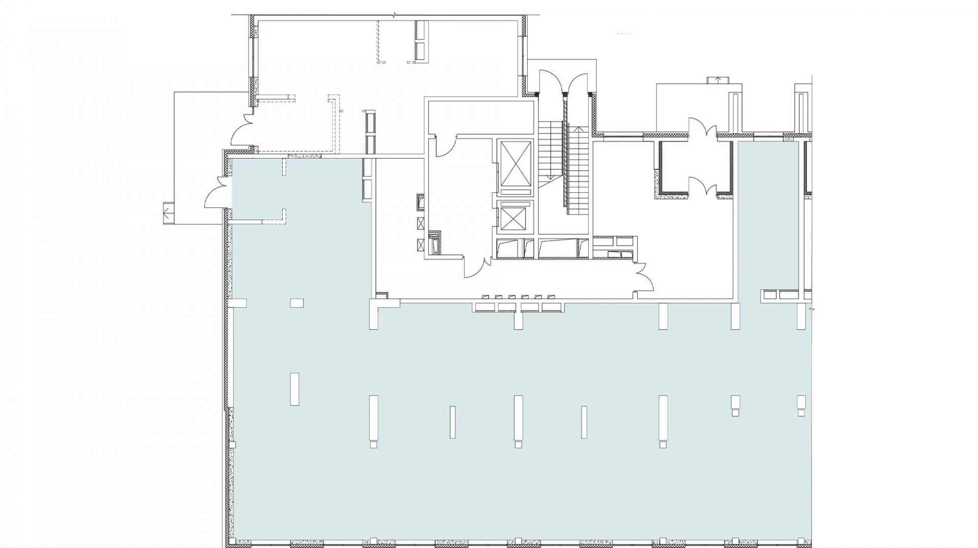
Аренда помещения свободного назначения, 822 м² , улица Дмитриева 3
Площадь: 822 м²
Цена аренды:
1 150 800 руб./мес
Цена:
1 400 руб./м²/мес

улица Дмитриева, дом
3,
Балашиха,
Московская область
- Контактные данные
- +7 (495) 02X-XX-XX
Описание объекта
ЖК «Новая Алексеевская роща» - перспективный жилой комплекс комфорт-класса в подмосковной Балашихе, ориентированный на активное развитие стрит-ритейла и сервисной инфраструктуры. Комплекс расположен в 6 км от МКАД по Щелковскому шоссе, вблизи станции метро «Щелковская», в живописной долине реки Пехорки, рядом с национальным парком «Лосиный Остров» и популярными зонами отдыха.
Локация формирует стабильный пешеходный и автомобильный трафик за счёт плотной жилой застройки, развития соседних кварталов и дефицита качественной коммерческой инфраструктуры в окружении. Проект ориентирован на семейную аудиторию и постоянное проживание, что обеспечивает высокий ежедневный спрос на товары и услуги повседневного назначения.
В составе комплекса предусмотрена собственная социальная инфраструктура: детский сад на 250 мест, школа на 1 230 мест, поликлиника. Это дополнительно усиливает поток посетителей и повышает коммерческий потенциал помещений на первых этажах.
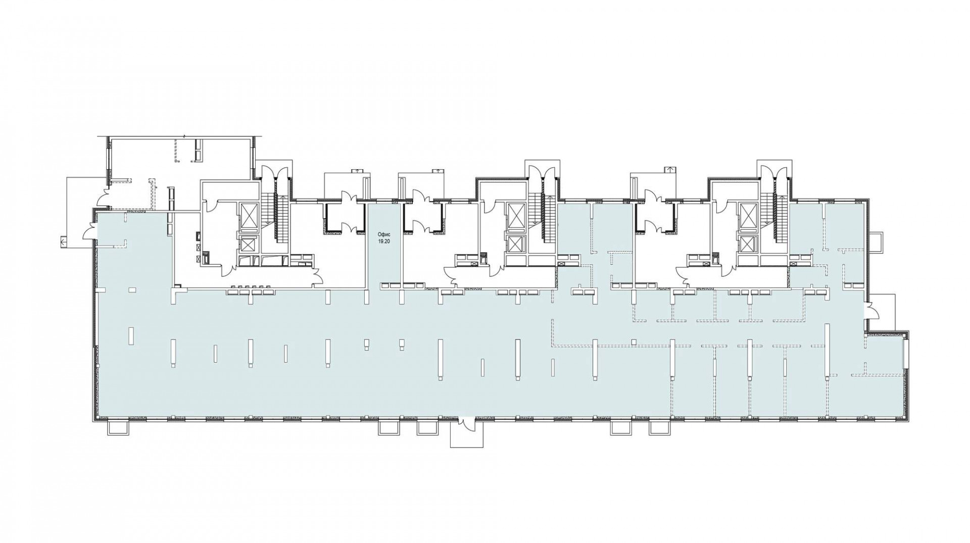
Коммерческие помещения в ЖК «Новая Алексеевская роща» подходят для размещения магазинов, супермаркетов, кафе и пекарен, аптек, салонов красоты, медицинских центров, пунктов услуг, детских и образовательных проектов, а также офисов продаж и сервисных компаний.
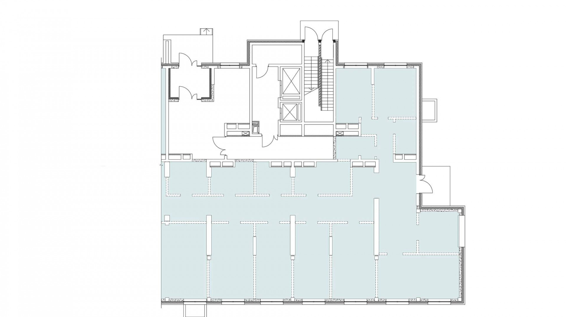
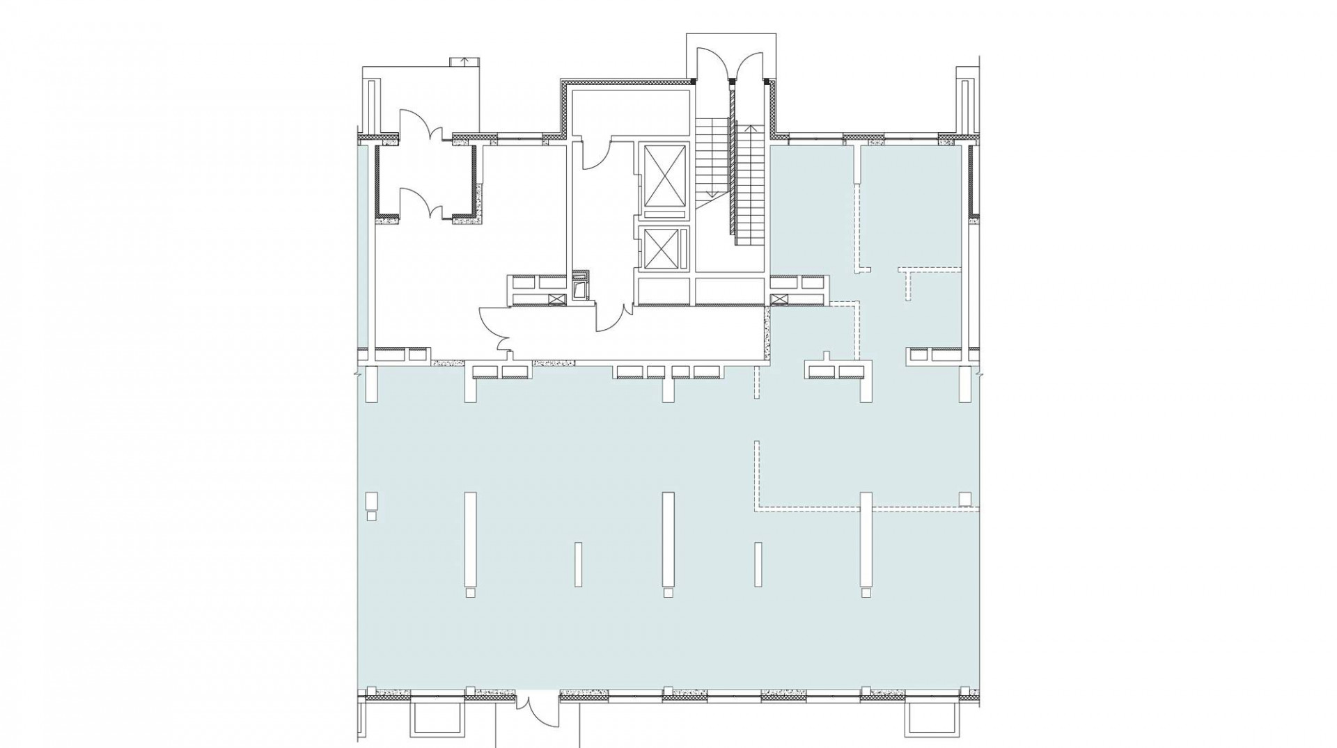
Параметры помещений:
площади от 36 до 827 м;
отдельные входы с улицы;
витринное остекление и места под вывески;
все инженерные коммуникации подведены;
помещения передаются без отделки, что позволяет реализовать любой формат.
ЖК «Новая Алексеевская роща» - это локация с растущей аудиторией, понятным спросом и долгосрочным потенциалом для стабильного бизнеса.[#8037787#]
улица Дмитриева, дом 3, Балашиха, Московская область
Цена аренды:
1 150 800 руб./мес
Общая площадь:822 м²














