Продажа отдельно стоящего здания, 2 м² , Центральная улица 1/3
Площадь: 2 м²
Цена продажи:
35 000 000 руб.
Цена:
17 500 000 руб./м²

Центральная улица, дом
1/3,
Сергиев Посад,
Московская область
Описание объекта
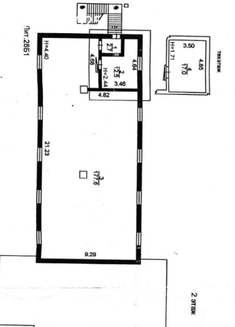
==ЛОТ 225025 == ОТ СОБСТВЕННИКА, БЕЗ КОМИССИИ. Предлагается к приобретению здание с круглосуточной охраняемой и огражденной территорией. Здание 425 м. кв. (2-х этажное) и помещение 270 м.кв. (1-этажное) Электроэнергия обеспечивается собственной подстанцией мощностью 150 кВт, имеется централизованное водоснабжение, отопление и канализация. В здании установлены две кран-балки, оборудованы санузлы и два туалета. На обоих этажах функционирует новая система вентиляции, включающая покрасочные камеры. Объект расположен в городской черте, в жилой зоне, и имеет новый асфальтированный подъезд. Территория вокруг здания также ограждена.
Центральная улица, дом 1/3, Сергиев Посад, Московская область
Цена:
35 000 000 руб.
17 500 000 руб./м²
Общая площадь:2 м²




