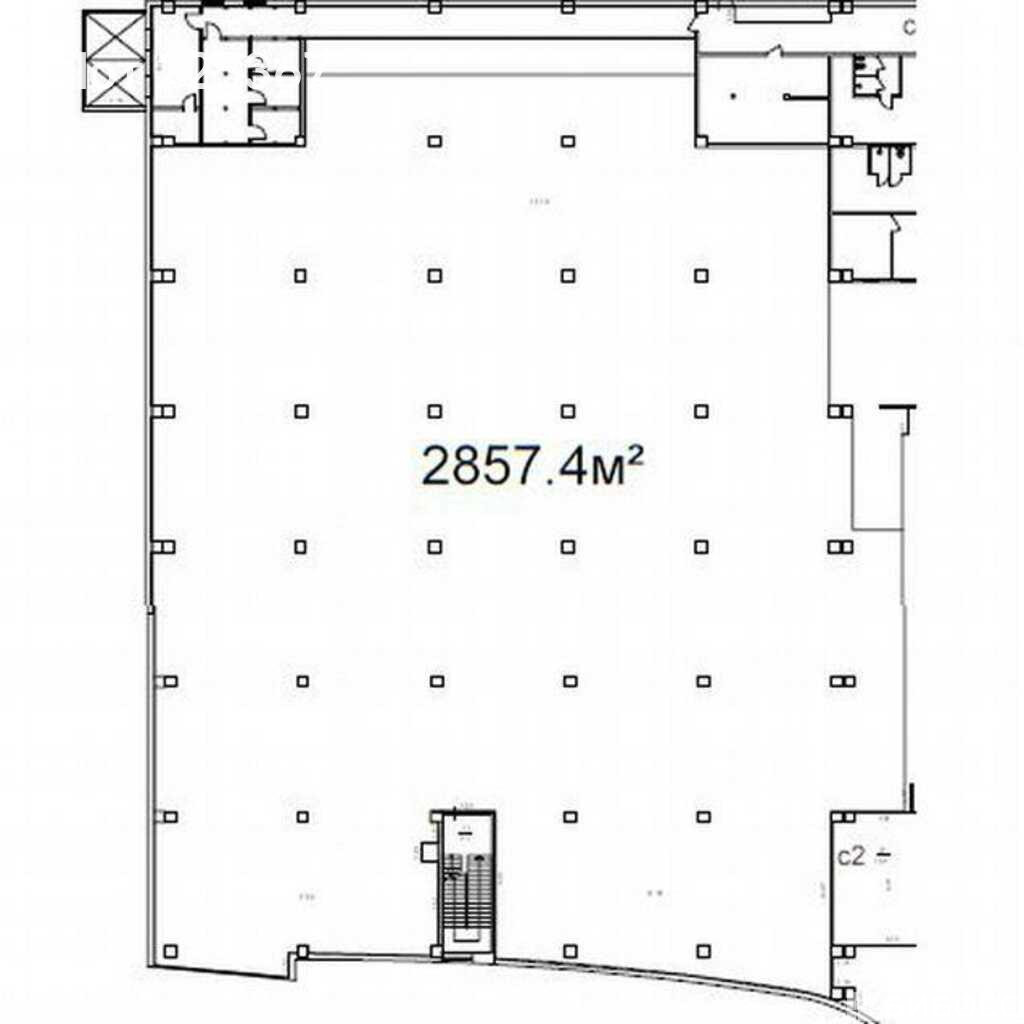
Аренда помещения свободного назначения, 2857 м² , Западная улица с100
Площадь: 2857 м²
Цена аренды:
4 821 000 руб./мес
Цена:
1 688 руб./м²/мес

Западная улица, дом
с100,
Новоивановское,
Московская область
Об объекте
- Этаж расположения помещения
- 3 этаж
Описание объекта
==ЛОТ 225367 == ОТ СОБСТВЕННИКА, БЕЗ КОМИССИИ. Свободного назначения, 2857. 4 м Сдаётся помещение 2875м2 на третьем этаже торгового комплекса «можайский Двор». Прямая аренда. Возможна аренда как целиком так и части помещения. Стоимость 1500р/м2. Высота потолков 7 метров. Шаг колон 8 метров. Нагрузка на перекрытия 500кг/м2. Свой отдельный грузовой лифт. 7
Западная улица, дом с100, Новоивановское, Московская область
Цена аренды:
4 821 000 руб./мес
Общая площадь:2 857 м²







