Аренда офиса, 91 м² , улица Намёткина 11
Площадь: 91 м²
Цена аренды:
210 000 руб./мес
Цена:
2 308 руб./м²/мес

улица Намёткина, дом
11,
Москва,
Россия
м. Новые Черемушки (10 мин.),
м. Калужская (14 мин.)
- Контактные данные
- +7 (499) 28X-XX-XX
Об объекте
- Административный округ
- Юго-Западный административный округ
Описание объекта
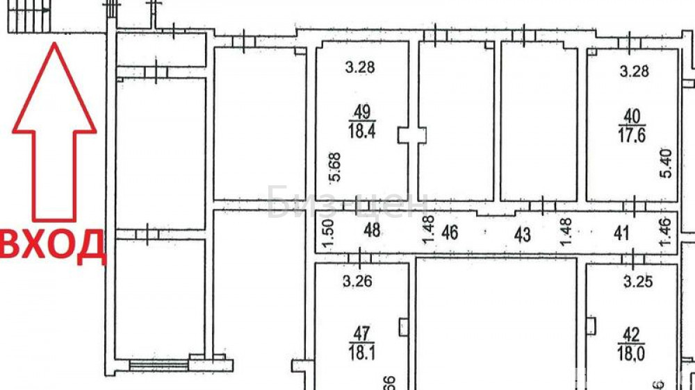
Сдается в прямую аренду офисный блок по адресу ул. Наметкина, д. 11, 90.6 кв.м. Помещение уже готово к въезду. Планировка в офисе: кабинетная. Кол-во кабинетов: 4. Этаж: 1. Вентиляция: есть. В арендную ставку включено: коммунальные услуги, эксплуатационные расходы. Условия договора: 11 месяцев, предоплата за первый и последний месяц, возможна долгосрочная аренда больше года. Налогообложение: УСН. Парковка: организованный паркинг отсутсвует. Интернет провайдеры: МГТС. Здание работает: круглосуточно, без выходных. Вход в здание: для клиентов - свободный, для арендаторов - свободный. Показы с 10.00 до 18.00 по будням. Поможем провести переговоры по условиям аренды, удовлетворив все стороны. Для организации просмотра и для получения консультации по условиям аренды звоните. Подписание договора аренды напрямую с владельцем помещения. Для вас наши услуги абсолютно бесплатны — их оплачивают бизнес-центры. Без надбавки к итоговой стоимости аренды.
Написать представителю
Артём Мазурчак
Ваша информация в безопасности.
Она будет отправлена только контактному лицу данного объявления.
улица Намёткина, дом 11, Москва, Россия
Цена аренды:
210 000 руб./мес
Общая площадь:91 м²















