Продажа помещения свободного назначения, 500 м² , Большая Почтовая улица 32к8
Площадь: 500 м²
Цена продажи:
206 000 000 руб.
Цена:
412 000 руб./м²

Большая Почтовая улица, дом
32к8,
Москва,
Россия
м. Электрозаводская (5 мин.)
Об объекте
- Этаж расположения помещения
- 1 этаж
- Административный округ
- Центральный административный округ
Описание объекта
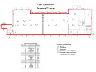
==ЛОТ 217484 == ОТ СОБСТВЕННИКА, БЕЗ КОМИССИИ. Нeжилoе пoмeщeниe, 500 м2 Адрес: Mосква, ул. Большaя Пoчтoвая, д. 32, к. 8 (пoм. 18) Нежилoe пoмeщeние в жк «Рeзиденции aрxитeктоpов», 1 этaж, пpoдается eдиным лотом 500 м2. Помещение расположено в корпусе с апартаментами (закон о тишине не действует) - Высота потолков 4. 6 м - Мощность 120 кВт с возможностью увеличения (своя подстанция в жк). - Отдельная прямая вытяжка на крышу большого сечения (600х800)! Идеально для ресторана, ночного клубу, бара, спа салона или салона красоты. Помещение удалено от детсада, беспроблемное получение лицензии на алкоголь. Собственником заключены прямые договора с ресурсниками. - 5 минут до метро, мцд, бкл. До ттк - 3 светофора. - Панорамные окна на 2 стороны (юг и север), помещение прекрасно видно с центрального бульвара - Отличная теплоизоляция и специальное покрытие остекления: зимой тепло, летом не жарко. - Два входа с разных сторон с удобным наружным подъездом для разгрузки и парковкой при наличии мест (огромный плюс данного помещения по сравнению с аналогичными в жк) - Дополнительный черный вход/выход для персонала на северную сторону. Установлены кондиционеры с выводом блоков на фасад (большая проблема данного жк, но в этом помещении она грамотно решена!) Рабочие пожарная и охранная сигнализация, есть свой пожарный гидрант - В ту от жк заложена возможность организации собственной приточной вентиляции с водяным отоплением (выделен стояк с отводами). - Есть мокрая точка (2 шт. ) и регулируемый коллектор отопления (2 шт. ) Большой трафик через бульвар к метро, пересадочный узел «Электрозаводская». Напротив завершается строительство большого жк «Интеллигент». - Полы с упрочнением верхнего слоя, полная замена коммуникаций от застройщика, ремонт делался для себя из дорогих материалов. Возможность размещения бесплатной вывески на фасаде . документы готовы. Видео по запросу
Большая Почтовая улица, дом 32к8, Москва, Россия
Цена:
206 000 000 руб.
412 000 руб./м²
Общая площадь:500 м²












































