Аренда помещения свободного назначения, 53 м² , Малая Почтовая улица 12
Площадь: 53 м²
Цена аренды:
144 925 руб./мес
Цена:
2 735 руб./м²/мес

Малая Почтовая улица, дом
12,
Москва,
Россия
м. Бауманская (8 мин.)
- Контактные данные
- +7 (495) 02X-XX-XX
Об объекте
- Административный округ
- Центральный административный округ
Описание объекта
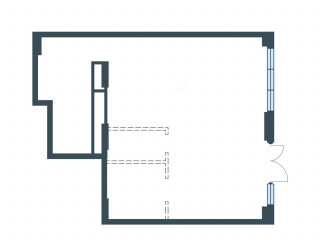
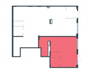
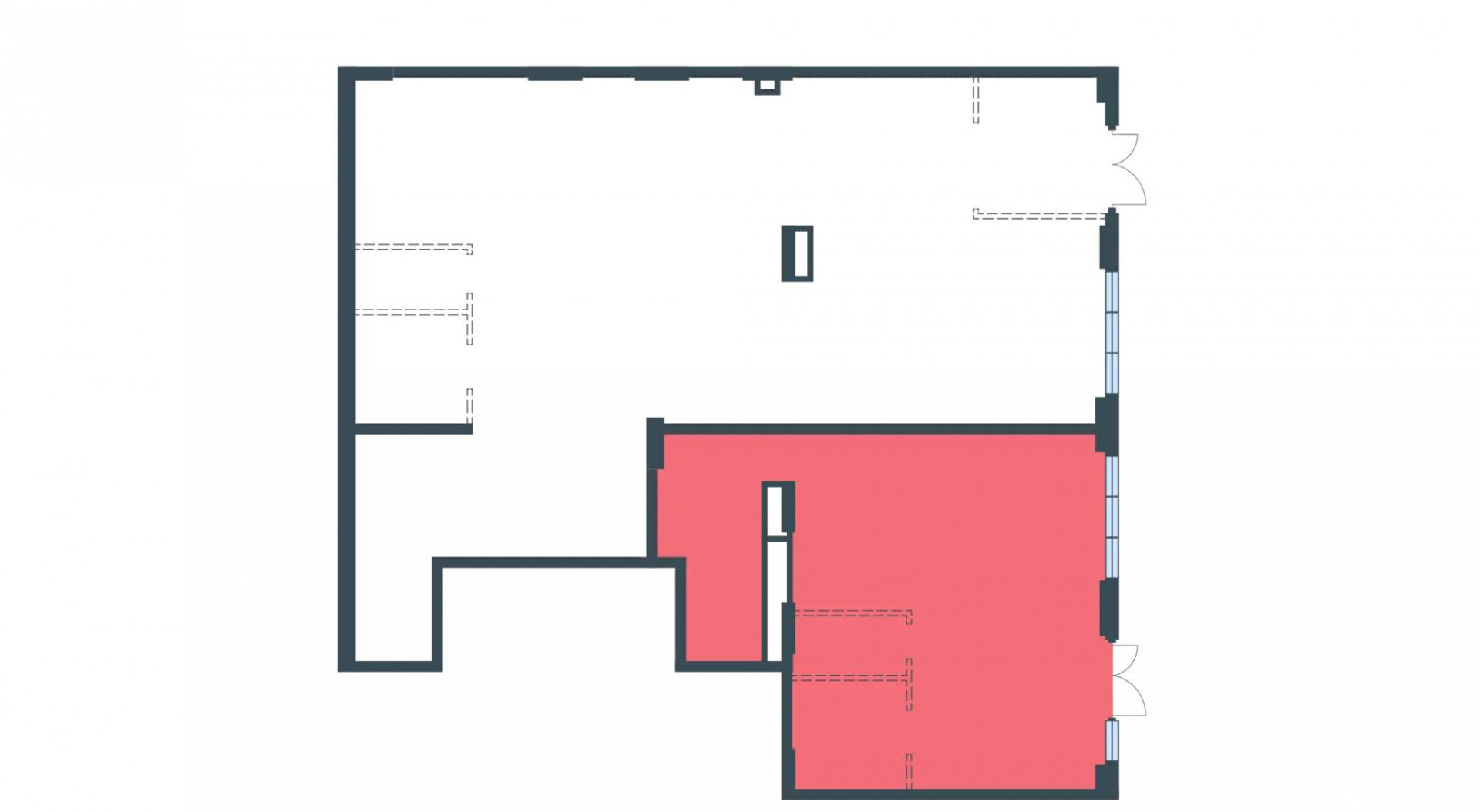
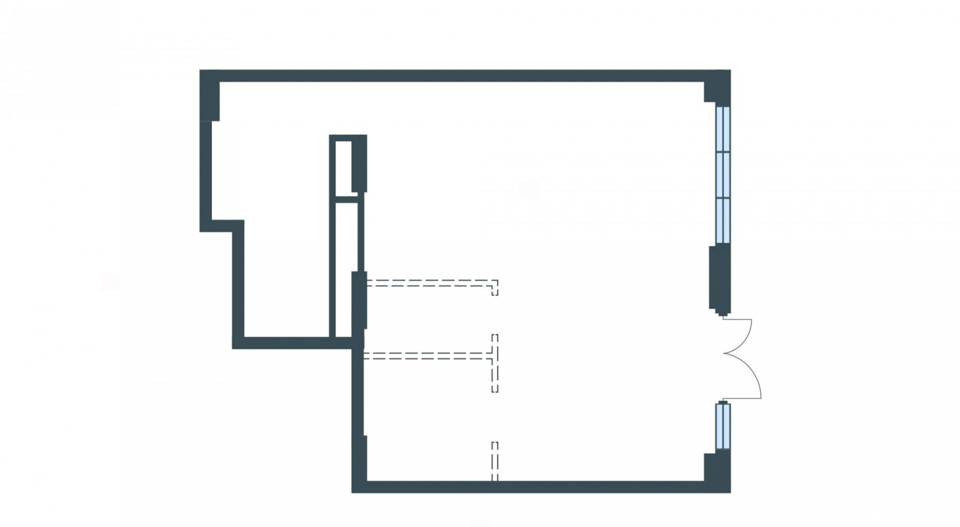
Сдаётся коммерческое помещение в ЖК «Басманный от Гранель»
Коммерческое помещение площадью 52,7 кв. м на 1-м этаже 19-этажного жилого дома бизнес-класса в сердце Басманного района Москвы (ЦАО) . ЖК «Басманный от Гранель» - престижный комплекс у метро «Бауманская» (5 минут пешком) , Садового кольца и крупных магистралей. Высокая транспортная доступность: метро, МЦК, наземный транспорт + плотная жилая застройка, МГТУ им. Баумана, деловые центры, парки и насыщенная инфраструктура обеспечивают постоянный пешеходный и автомобильный трафик.
Ключевые преимущества:
Отдельный вход с улицы.
Место под вывеску.
Витринное остекление для привлечения клиентов.
Без ремонта - обустроите под кафе, магазин, офис или услуги по своему проекту.
Все коммуникации: водоснабжение, канализация, электроснабжение, отопление.
Выделенная мощность: 10,6 кВт.
Современная архитектура ЖК гармонирует с историческим шармом Басманного - идеальная площадка для бизнеса с высоким потоком жителей, студентов и посетителей!
Наши менеджеры помогут вам подобрать наиболее подходящее помещение для вашего бизнеса. Звоните и узнайте подробности![#6596112#]
Малая Почтовая улица, дом 12, Москва, Россия
Цена аренды:
144 925 руб./мес
Общая площадь:53 м²




















