Аренда офиса, 46 м² , Большая Новодмитровская улица 23с2
Площадь: 46 м²
Цена аренды:
160 000 руб./мес
Цена:
3 479 руб./м²/мес

Большая Новодмитровская улица, дом
23с2,
Москва,
Россия
м. Дмитровская (10 мин.),
м. Савеловская (10 мин.),
м. Бутырская (11 мин.)
- Контактные данные
- +7 (499) 28X-XX-XX
Об объекте
- Административный округ
- Северо-Восточный административный округ
Описание объекта
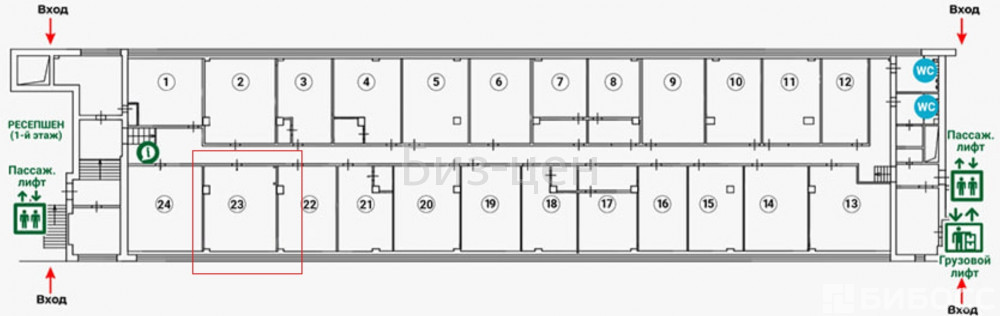
Аренда офисного блока 45.6 кв.м недалеко от метро. Состояние отделки — готово к въезду.
Договор аренды заключаете с собственником помещения. Без надбавки к итоговой стоимости аренды.
В арендную ставку включено:
- коммунальные услуги, включая электроэнергию,
- эксплуат.расходы,
- уборка офиса,
- уборка общих мест,
- вывоз мусора,
- интернет,
- охрана здания.
• планировка в офисе: openspace;
• вентиляция: есть;
• сан. узел в офисе: нет;
• условия договора: 11, мес, 1 мес обеспечит;
• налогообложение: НДС;
• вход в здание: для арендаторов по документу, для клиентов по документу;
• парковка: на территории БЦ;
• здание работает: круглосуточно;
Покажем офис, ответив на все ваши вопросы.
Поможем провести переговоры по условиям аренды, удовлетворив все стороны.
Для организации просмотра и для получения консультации по условиям аренды звоните.
Для вас наши услуги бесплатны, их оплачивает БЦ.
Описание бизнес-центра:
Бизнес-центр «Стрелецкая Слобода» располагается в Бутырском районе, вблизи Савеловского вокзала. Здание оснащено охранной и противопожарными сигнализациями, системами видеонаблюдения и контроля доступа, предусматривается резервное энергоснабжение. Также отметить следует разумные ставки за аренду помещений «Стрелецкая Слобода», которые привлекают множество арендаторов.
Написать представителю
Артём Мазурчак
Ваша информация в безопасности.
Она будет отправлена только контактному лицу данного объявления.
Большая Новодмитровская улица, дом 23с2, Москва, Россия
Цена аренды:
160 000 руб./мес
Общая площадь:46 м²













