Аренда помещения свободного назначения, 260 м² , Пяловская улица 1
Площадь: 260 м²
Цена аренды:
400 000 руб./мес
Цена:
1 539 руб./м²/мес

Пяловская улица, дом
1,
Москва,
Россия
Об объекте
- Этаж расположения помещения
- 4 этаж
- Административный округ
- Северный административный округ
Описание объекта
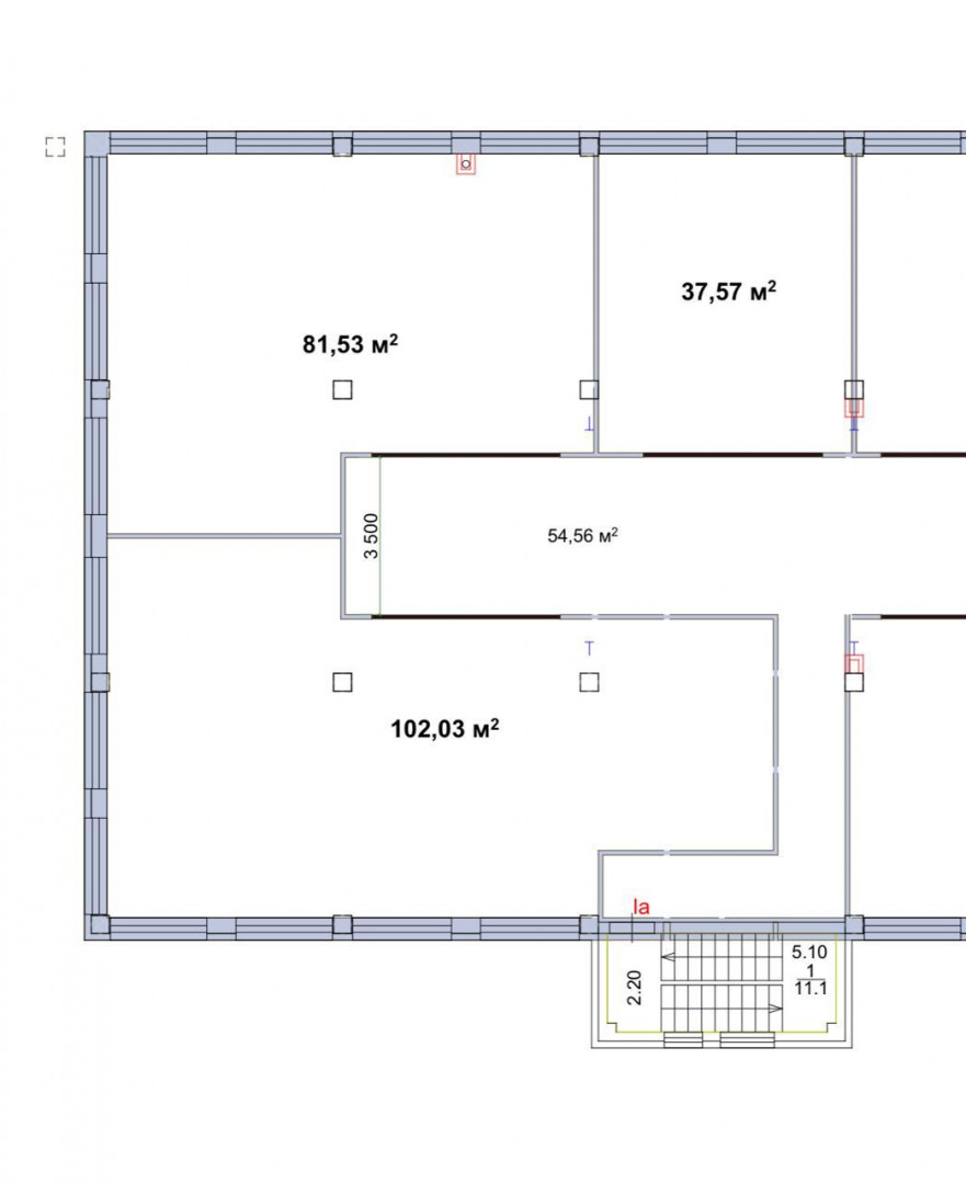
==ЛОТ 220776 == ОТ СОБСТВЕННИКА, БЕЗ КОМИССИИ. Сдается помещение свободного назначения г. Москва ул. Пяловская ул., 1 (260 м) в дизайн-гараже Дегунино. Общая площадь: 260 Этаж: 4 Этажность здания: 6 . Отдельно стоящее стильное здание после реновации находится на собственном земельном участке. Помещение готово под внутреннюю отделку, разделены на комнаты. Внутри есть все необходимые современные коммуникации: электричество (600 кВт), высокоскоростной интернет, отопление, водоснабжение, мокрые точки и канализация. Также здание оборудовано приточно-вытяжной вентиляцией и противопожарной системой. Это отличное место, чтобы открыть детейлинг, автосервис, спортзал, интернет-магазин, склад, фулфилмент, даркстор, легкое производство, сборочный цех, а также офис. На первом этаже расположены сервисные помещения и стритритейл, что обеспечит дополнительный поток клиентов. На любой этаж здания возможно заехать на автомобиле по спиральной рампе. Высота потолка — 2, 5 м, нагрузка на пол — 350 кг/м2. В здании есть два грузопассажирских лифта до 3 тонн. Объект находится в оживленном районе в 7 минутах ходьбы от метро Селигерская и 5 минутах от мцд Моссельмаш Ленинградского направления. Удобный выезд на свх и мсд, всего 10 минут на автомобиле до мкад и 20 минут до аэропорта Шереметьево. Недалеко от здания расположено несколько густонаселенных жилых комплексов, также в этом районе отлично развита городская инфраструктура.
Пяловская улица, дом 1, Москва, Россия
Цена аренды:
400 000 руб./мес
Общая площадь:260 м²

















