Аренда офиса, 202 м² , Старокалужское шоссе 62с1к4
Площадь: 202 м²
Цена аренды:
420 833 руб./мес
Цена:
2 084 руб./м²/мес

Старокалужское шоссе, дом
62с1к4,
Москва,
Россия
м. Калужская
Об объекте
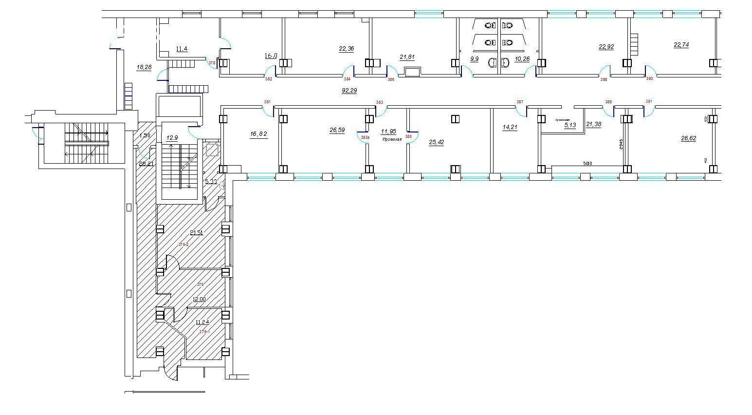
- Этаж расположения помещения
- 3 этаж
- Административный округ
- Юго-Западный административный округ
Описание объекта
==ЛОТ 220915 == ОТ СОБСТВЕННИКА, БЕЗ КОМИССИИ. Предлагаем арендовать офисный блок площадью 219, 15 м кв., расположенный на 3-м этаже 3-этажного здания. Доступ в помещение – круглосуточно. Состояние интерьера – хороший ремонт, окна – ПВХ+стеклопакеты, система кондиционирования воздуха – сплит-системы, с/у располагаются на этаже. В бизнес-центр «Старокалужское, 62» удобно добираться: он находится на пересечении магистралей – ул. Профсоюзной, ул. Обручева (ул. Лобачевского, Балаклавский пр-т), проехать можно также через улицы Намёткина (Каховка), Архитектора Власова, Академика Челомея, а неподалёку пролегают Севастопольский и Ленинский проспекты. Автомобиль можно оставлять на муниципальной открытой парковке всего за 40 руб/час, каршеринговые автомобили паркуются бесплатно. Также есть места на закрытой парковке возле бизнес-центра, со стоимостью от 8000 руб/месяц. 2 минуты пешком до станции «Воронцовская» Большой кольцевой линии, 5-8 минут от станции метро «Калужская». Это удобно для сотрудников, клиентов, курьеров. станции «Воронцовская» Большой кольцевой линии. Также в здание можно зайти со стороны улицы Архитектора Власова.
Старокалужское шоссе, дом 62с1к4, Москва, Россия
Цена аренды:
420 833 руб./мес
Общая площадь:202 м²












