Аренда помещения свободного назначения, 301 м² , Новоостаповская улица 16к1
Площадь: 301 м²
Цена аренды:
1 386 440 руб./мес
Цена:
4 607 руб./м²/мес

Новоостаповская улица, дом
16к1,
Москва,
Россия
м. Дубровка (3 мин.)
- Контактные данные
- +7 (495) 02X-XX-XX
Об объекте
- Административный округ
- Юго-Восточный административный округ
Описание объекта
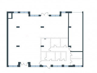
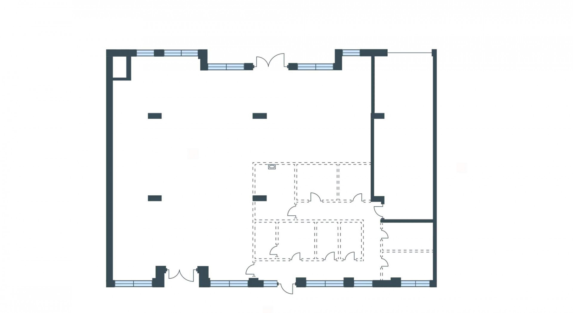
Сдаётся коммерческое помещение свободного назначения в ЖК «Дубровка от Гранель». Возможное назначение: СУПЕРМАРКЕТ
Коммерческое помещение площадью 301,4 м на 1-м этаже жилого дома бизнес-класса в ЮВАО Москвы. ЖК «Дубровка от Гранель» расположен в шаговой доступности от метро «Дубровка» (3 минуты пешком) , рядом МЦК «Дубровка» (10 минут) , метро «Волгоградский проспект» (12 минут) , ТТК и Волгоградский проспект - до Садового кольца 7 минут, до Кремля 11 минут. Высокий пешеходный трафик благодаря плотной жилой застройке, новому ЖК и будущему крупному общественно-деловому кварталу в Южном порту.
Ключевые преимущества:
Отдельный вход с улицы.
Место под вывеску.
Витринное остекление для максимальной видимости.
Арендные каникулы.
Без ремонта - гибкая планировка под кафе, магазин, офис, супермаркет или услуги.
Все коммуникации: водоснабжение, канализация, электроснабжение, отопление.
Выделенная мощность: 75,7кВт.
Современная архитектура от T+T Architects с металлическими фасадами, панорамным остеклением и закрытыми дворами (детские площадки playhub, спортзоны) . Комплекс сочетает урбанистику и комфорт - идеально для бизнеса с потоком жителей и посетителей.
Без посредников, напрямую от собственника - УК «Аструм Недвижимость» (ГК «Гранель») .
Наши менеджеры помогут вам подобрать наиболее подходящее помещение для вашего бизнеса. Звоните и узнайте подробности![#7322632#]
Новоостаповская улица, дом 16к1, Москва, Россия
Цена аренды:
1 386 440 руб./мес
Общая площадь:301 м²
















