Аренда помещения свободного назначения, 521 м² , улица Шеногина вл2/11
Площадь: 521 м²
Цена аренды:
4 815 000 руб./мес
Цена:
9 242 руб./м²/мес

улица Шеногина, дом
вл2/11,
Москва,
Россия
м. Хорошёво
- Контактные данные
- +7 (495) 06X-XX-XX
Об объекте
- Административный округ
- Северо-Западный административный округ
Описание объекта
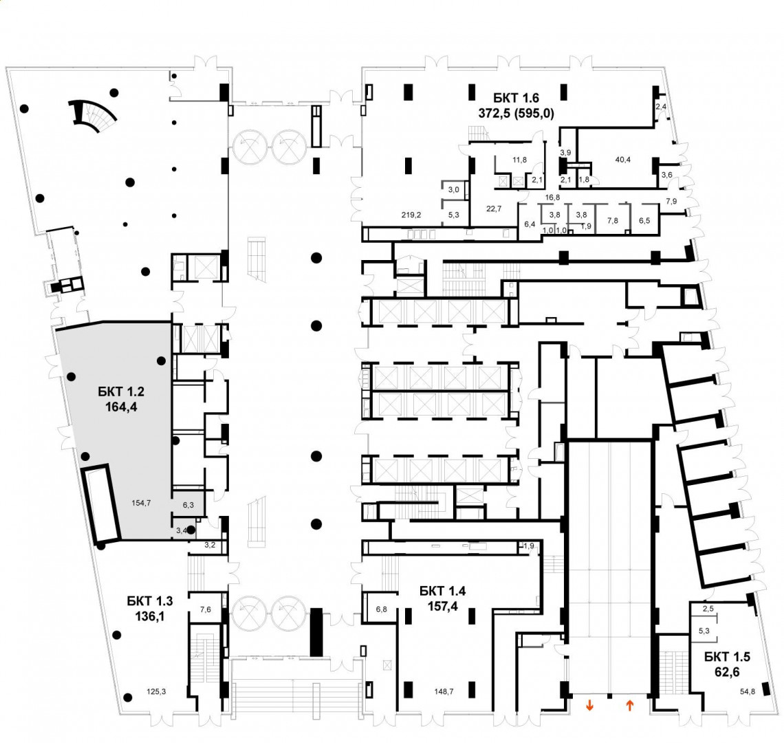
Помещения свободного назначения от 62,6 м в бизнес-центре Sydney City (класс "А") - премиум-локация на Шелепихинской набережной
Ищете стильное, современное пространство под магазин, шоурум, салон или офис? В Sydney City - новом бизнес-центре класса «А» в сердце Большого Сити - открылся набор площадей свободного назначения с панорамным остеклением, высокими потолками и гибкими условиями аренды.
Адрес: ул. Шеногина, земельный участок 2/11
Арендные каникулы - есть!
Состояние: без отделки (shell&core) - создайте пространство под свой бренд
Высота потолков: от 3,8 до 4,65 м
Панорамные витрины в пол
1 или 2 отдельных входа
Инженерия БЦ:
Энерговооруженность - 100 Вт/м
Воздухообмен - 60 м/ч
Система кондиционирования - чиллер/фанкойл
Современные системы пожаротушения, оповещения и безопасности
Автоматизация и диспетчеризация всех инженерных систем
Шаг колонн: 8,4 8,4 м 5 лифтовых групп (в том числе 17 грузопассажирских лифтов)
Просторная входная группа
Транспортная доступность:
Сейчас: 15 минут пешком до метро и МЦК «Шелепиха»
С 2026 года: новая станция «Звенигородская» - всего 1 минута пешком!
Инфраструктура:
24-этажный бизнес-центр находится в центре флагманского проекта премиум-класса от ГК ФСК - Sydney City. Первый жилой квартал в концепции well being в Москве.
На территории в 19,3 га ведется строительство 23 корпусов, переменной этажности 8-44 этажей.
Квартал обладает развитой собственной социальной и коммерческой инфраструктурой, начиная от престижной школы и д/с и заканчивая фудхоллом и развлекательным центром.
Активный пешеходный и деловой трафик.
Условия аренды:
Эксплуатационные и коммунальные платежи оплачиваются отдельно по факту (счета от УК) . Гибкие условия. Прямой договор.
Звоните, чтобы назначить просмотр и обсудить условия![#7365397#]
улица Шеногина, дом вл2/11, Москва, Россия
Цена аренды:
4 815 000 руб./мес
Общая площадь:521 м²














