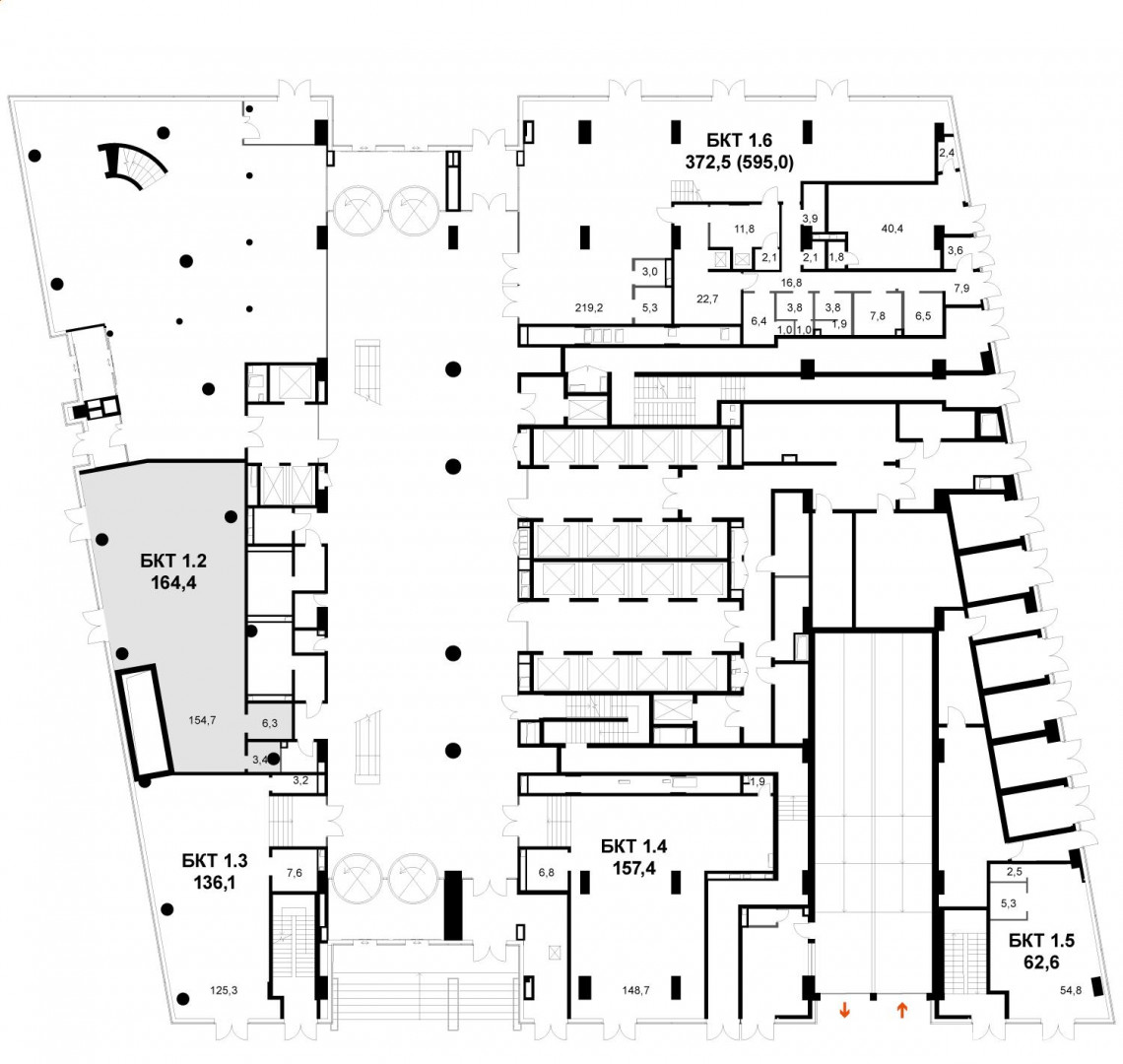
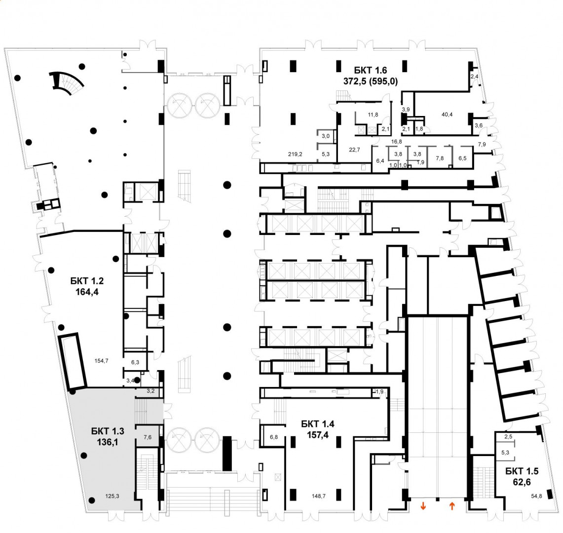
Аренда помещения свободного назначения, 164 м² , улица Шеногина вл2/11
Площадь: 164 м²
Цена аренды:
1 528 920 руб./мес
Цена:
9 323 руб./м²/мес

улица Шеногина, дом
вл2/11,
Москва,
Россия
м. Шелепиха (15 мин.)
- Контактные данные
- +7 (495) 02X-XX-XX
Об объекте
- Административный округ
- Северо-Западный административный округ
Описание объекта
Аренда помещений свободного назначения в новом БЦ Сидней Сити, всего в 5 минутах от ММДЦ Москва-сити!
В аренду предлагаются помещения без отделки напрямую от ФСК БЕЗ КОМИССИИ!!
БЦ Сидней Сити — это новый Бизнес-центр класса "А" всего в 5 минутах от ММДЦ Москва-сити, а с 4 кв. 2026 г., благодаря открытию новой ст. метро Звенигородская (Рублево-Архангельской ветки), всего в 1 станции метро от Москва-сити!
БЦ Сидней Сити расположен в самом центре Большого Сити с прекрасными видовыми характеристиками на Шелепихинскую набережную. Станция метро и МЦК "Шелепиха" находятся в 15-минутной пешеходной доступности, а с 4 кв. 2026 г. выход из новой ст.м. метро "Звенигородская" будет располагаться непосредственно у входа в бизнес-центр.
В бизнес-центре выполняется высококачественная отделка мест общего пользования, а офисные помещения сдаются в состоянии "под отделку".
Арендодатель готов предоставить арендные каникулы на ремонт.
БЦ Сидней Сити - это современные архитектура от бюро Кляйневельт Архитектен, инженерные решения и комфортные помещения с панорамным остеклением "в пол" и открытой эффективной планировкой. Шаг колонн 8,4 х 8,4 м, энерговооруженность - 100 Вт/м2, 5 отдельных лифтовых групп, в т.ч. 17 грузопассажирских лифтов марки Митсубиши. Воздухообмен 60 м3/час, кондиционирование по схеме чиллер/фанк-ойл. Автоматическая система спринклерного пожаротушения, АПС, СОУЭ, ДУ. Автоматизация и диспетчеризация базовых инженерных систем и ПБ. Просторная двусветная входная группа с торгово-сервисными помещениями и рестораном на 1 и 2 этажах.
Многоуровневый паркинг на 313 м/м, из них 147 м/м доступны в аренду вместе с офисами. Ставка аренды паркинга по запросу.
Расчетная вместимость БЦ - 4800 рабочих мест.
Верхние этажи БЦ будет занимать штаб-квартира ГК ФСК (20 000 м2), переезд запланирован на 2 кв. 2026 г.
Доступ к обширной инфраструктуре ЖК Сидней Сити. Сидней Сити - новый проект премиум-класса на Шелепихинской набережной. На территории в 19,3 га ведется строительство 23 жилых корпусов, переменной этажности 8-44 этажей. Квартал обладает развитой собственной социальной и коммерческой инфраструктурой, начиная от престижной школы и д/с и заканчивая фудхоллом и развлекательным центром.
Ставка аренды помещений включает НДС, не включает эксплуатационные расходы и коммунальные платежи. Ставка эксплуатационных расходов определяется в диапазоне от 10 500 до 12 500 руб./кв.м/год вкл. НДС.
Позвоните, мы оперативно организуем просмотр помещения в комфортное для вас время и ответим на все интересующие вас вопросы![#7460138#]
улица Шеногина, дом вл2/11, Москва, Россия
Цена аренды:
1 528 920 руб./мес
Общая площадь:164 м²



























