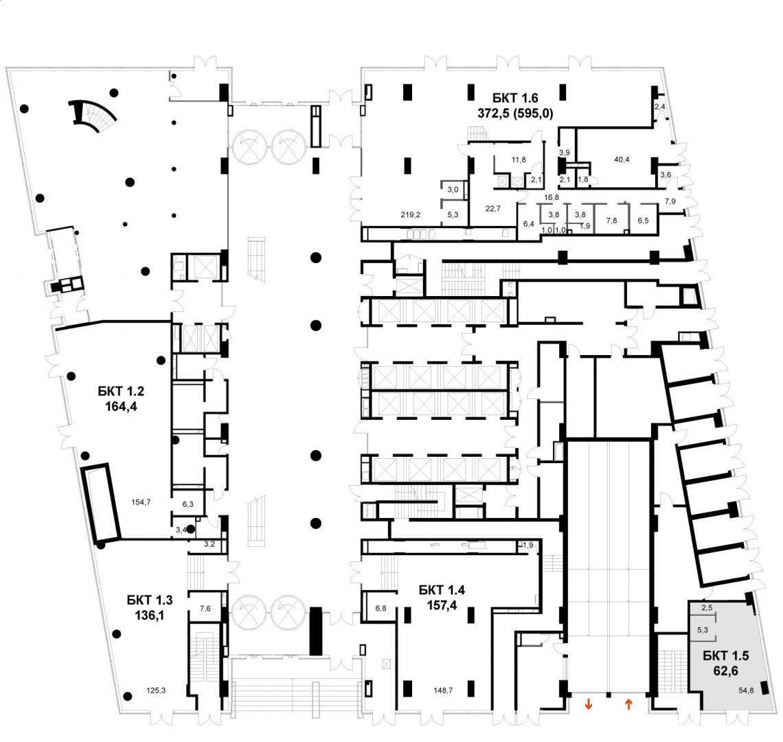
Аренда помещения свободного назначения, 63 м² , улица Шеногина 2
Площадь: 63 м²
Цена аренды:
657 300 руб./мес
Цена:
10 434 руб./м²/мес

улица Шеногина, дом
2,
Москва,
Россия
м. Шелепиха (15 мин.)
- Контактные данные
- +7 (495) 02X-XX-XX
Об объекте
- Административный округ
- Северо-Западный административный округ
Описание объекта
Аренда помещений свободного назначения в новом БЦ Sydney city, всего в 5 минутах от ММДЦ Москва-сити!
В аренду предлагаются помещения без отделки напрямую от ФСК БЕЗ КОМИССИИ!!
БЦ Sydney city — это новый Бизнес-центр класса "А" всего в 5 минутах от ММДЦ Москва-сити, а с 4 кв. 2026 г., благодаря открытию новой ст. метро Звенигородская (Рублево-Архангельской ветки), всего в 1 станции метро от Москва-сити!
БЦ Sydney city расположен в самом центре Большого Сити с прекрасными видовыми характеристиками на Шелепихинскую набережную. Станция метро и МЦК "Шелепиха" находятся в 15-минутной пешеходной доступности, а с 4 кв. 2026 г. выход из новой ст.м. метро "Звенигородская" будет располагаться непосредственно у входа в бизнес-центр.
В бизнес-центре выполняется высококачественная отделка мест общего пользования, а офисные помещения сдаются в состоянии "под отделку" (shell&core).
Арендодатель готов предоставить арендные каникулы на ремонт.
БЦ Sydney city - это современные архитектура от бюро Kleinewelt architekten, инженерные решения и комфортные помещения с панорамным остеклением «в пол» и открытой эффективной планировкой. Шаг колонн 8,4 х 8,4 м, энерговооруженность - 100 Вт/м2, 5 отдельных лифтовых групп, в т.ч. 17 грузопассажирских лифтов марки Mitsubishi. Воздухообмен 60 м3/час, кондиционирование по схеме чиллер/фанк-ойл. Автоматическая система спринклерного пожаротушения, АПС, СОУЭ, ДУ. Автоматизация и диспетчеризация базовых инженерных систем и ПБ. Просторная двусветная входная группа с торгово-сервисными помещениями и рестораном на 1 и 2 этажах.
Многоуровневый паркинг на 313 м/м, из них 147 м/м доступны в аренду вместе с офисами. Ставка аренды паркинга – по запросу.
Расчетная вместимость БЦ – 4800 рабочих мест.
Верхние этажи БЦ будет занимать штаб-квартира ГК ФСК (20 000 м2), переезд запланирован на 2 кв. 2026 г.
Доступ к обширной инфраструктуре ЖК Sydney City. Sydney City - новый проект премиум-класса на Шелепихинской набережной, первый жилой квартал в концепции well being в Москве. На территории в 19,3 га ведется строительство 23 жилых корпусов, переменной этажности 8-44 этажей. Квартал обладает развитой собственной социальной и коммерческой инфраструктурой, начиная от престижной школы и д/с и заканчивая фудхоллом и развлекательным центром.
Ставка аренды помещений включает НДС, не включает ОРЕХ и коммунальные платежи. Ставка эксплуатационных расходов определяется в диапазоне от 10 500 до 12 500 руб./кв.м/год вкл. НДС.
Позвоните, мы оперативно организуем просмотр помещения в комфортное для вас время и ответим на все интересующие вас вопросы![#7460150#]
улица Шеногина, дом 2, Москва, Россия
Цена аренды:
657 300 руб./мес
Общая площадь:63 м²



























