Аренда помещения свободного назначения, 214 м² , улица Лестева 21к2
Площадь: 214 м²
Цена аренды:
350 000 руб./мес
Цена:
1 636 руб./м²/мес

улица Лестева, дом
21к2,
Москва,
Россия
м. Шаболовская (5 мин.)
Об объекте
- Этаж расположения помещения
- Цокольный этаж
- Административный округ
- Южный административный округ
Описание объекта
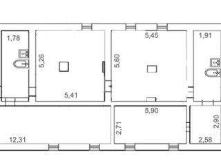
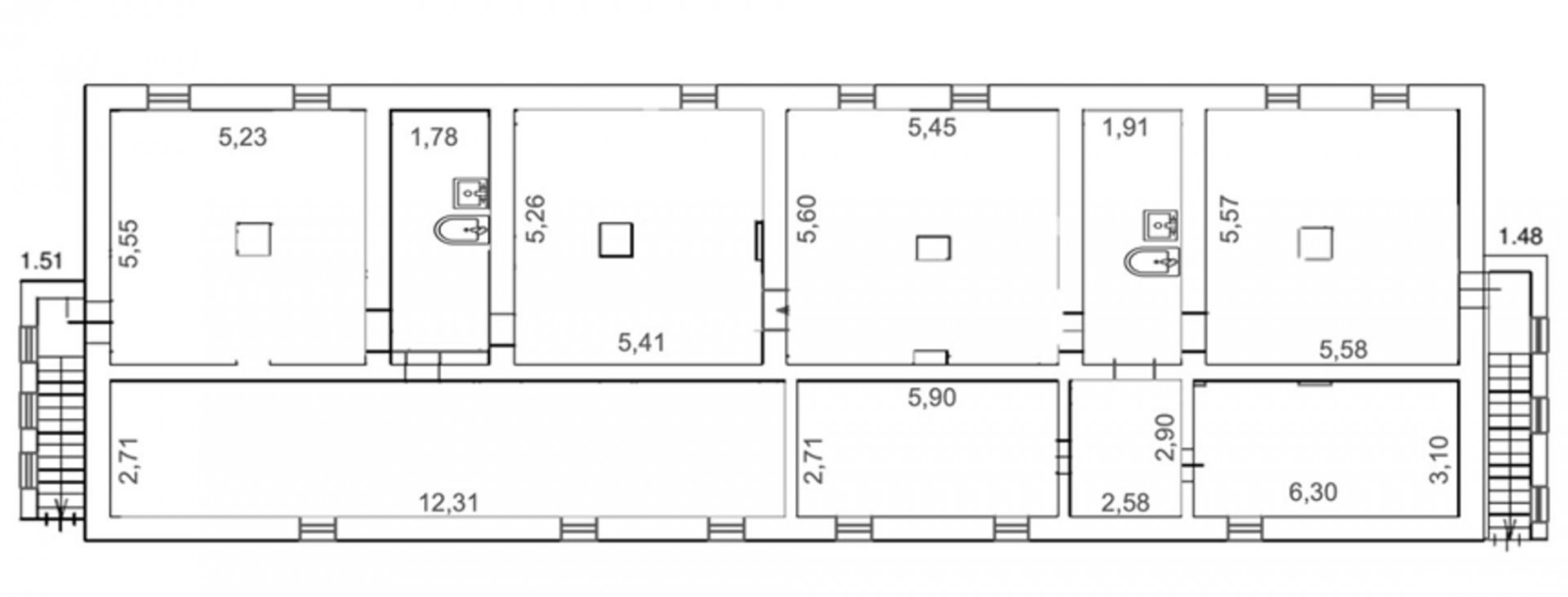
==ЛОТ 221936 == ОТ СОБСТВЕННИКА, БЕЗ КОМИССИИ. Предлагается в аренду помещение общей площадью 213, 8 квадратных метров. Объект оснащен системой водоснабжения, теплоснабжения и канализации. Предусмотрена возможность организации отдельной парковки для посетителей. Помещение оборудовано собственным входом.
улица Лестева, дом 21к2, Москва, Россия
Цена аренды:
350 000 руб./мес
Общая площадь:214 м²










