Аренда офиса, 730 м² , Летниковская улица 2
Площадь: 730 м²
Цена аренды:
4 766 900 руб./мес
Цена:
6 530 руб./м²/мес

Летниковская улица, дом
2,
Москва,
Россия
м. Павелецкая (6 мин.)
Об объекте
- Этаж расположения помещения
- 5 этаж
- Административный округ
- Центральный административный округ
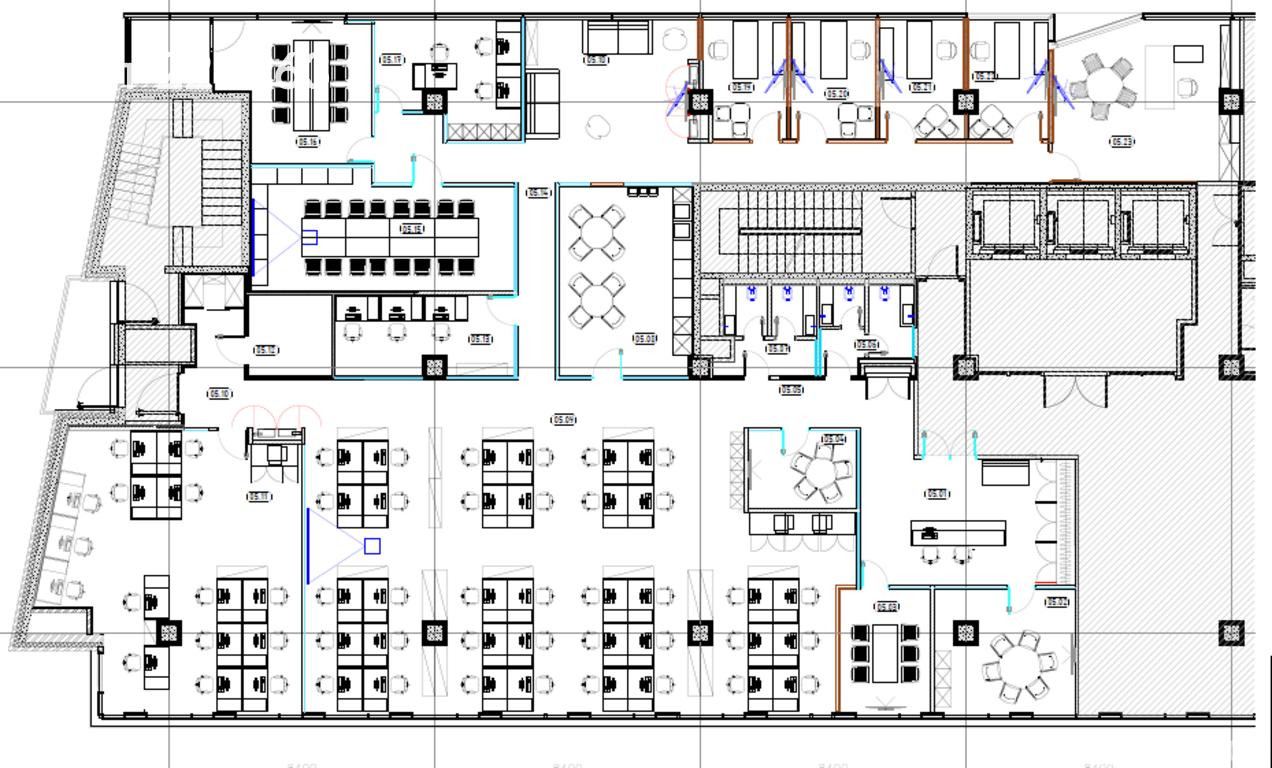
Описание объекта
==ЛОТ 222063 == ОТ СОБСТВЕННИКА, БЕЗ КОМИССИИ. В аренду предлагается офисное помещение в бизнес-центре класса А. Здание характеризуется развитой инфраструктурой, обеспечивающей высокий уровень комфорта и удобства для арендаторов. Функциональные планировочные решения позволяют эффективно использовать пространство в соответствии с потребностями бизнеса. Панорамное остекление создает оптимальные условия для естественного освещения и обеспечивает панорамный вид на окружающую среду. Готовность к въезду — 01. 03. 2026
Летниковская улица, дом 2, Москва, Россия
Цена аренды:
4 766 900 руб./мес
Общая площадь:730 м²





















