Аренда офиса, 29250 м² , улица Шеногина вл2/11
Площадь: 29250 м²
Цена аренды:
134 062 500 руб./мес
Цена:
4 584 руб./м²/мес

улица Шеногина, дом
вл2/11,
Москва,
Россия
м. Хорошёво
- Контактные данные
- +7 (495) 15X-XX-XX
Об объекте
- Административный округ
- Северо-Западный административный округ
Описание объекта
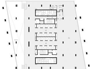
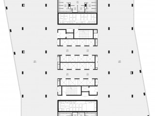
Сдается в аренду офисный блок площадью 29 250 м2 в бизнес-центре класса «А» Sydney City.
Без отделки, арендные каникулы.
По адресу ул. Шеногина, земельный участок 2/11.
Эксплуатационные и коммунальные платежи оплачиваются отдельно по счетам от УК.
Возможна аренда нескольких этажей от 13 тыс. м2. Подробности уточняйте у менеджера.
БЦ Sydney City располагается центре Большого Сити и Шелепихинской набережной.
Станция метро и МЦК «Шелепиха» находятся в 15-минутной пешей доступности, а с 2026 г. до метро можно будет дойти за 1 минуту, благодаря новой станции «Звенигородская».
Панорамное остекление в пол
Шаг колонн 8,4 х 8,4 м
Отделка - shell&core
Энерговооруженность - 100 Вт/м
5 отдельных лифтовых групп, в т.ч. 17 грузопассажирских лифтов
Эксплуатируемая кровля на 4, 11, 16 этажах в виде террас
Воздухообмен 60 м/час, кондиционирование по схеме чиллер/фанк-ойл
Автоматическая система спринклерного пожаротушения, АПС, СОУЭ, ДУ
Автоматизация и диспетчеризация базовых инженерных систем и ПБ
Просторная входная группа с торговыми помещениями и ресторанами на 1 и 2 этажах
Высота помещений 1-го этажа - до 8 м
ЖК Sydney City - новый проект премиум-класса на Шелепихинской набережной. Первый жилой квартал в концепции well being в Москве.
На территории в 19,3 га ведется строительство 23 корпусов, переменной этажности 8-44 этажей.
Квартал обладает развитой собственной социальной и коммерческой инфраструктурой, начиная от престижной школы и д/с и заканчивая фудхоллом и развлекательным центром.[#7533410#]
улица Шеногина, дом вл2/11, Москва, Россия
Цена аренды:
134 062 500 руб./мес
Общая площадь:29 250 м²




















