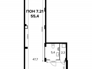
Продажа помещения свободного назначения, 53 м² , Ленинградское шоссе 228к4
Площадь: 53 м²
Цена продажи:
17 046 000 руб.
Цена:
321 623 руб./м²

Ленинградское шоссе, дом
228к4,
Москва,
Россия
м. Беломорская (15 мин.)
- Контактные данные
- +7 (495) 15X-XX-XX
Об объекте
- Административный округ
- Северный административный округ
Описание объекта
Предлагается в продажу помещение свободного назначения, расположенное в ЖК 1-й Ленинградский площадью 52.8 кв.м. Располагается на 1 этаже 15-этажного корпуса. Помещение идеально подойдет для магазина, кафе, офиса или другого бизнеса благодаря функциональной планировке и большому потоку потенциальных клиентов.
Информация о комплексе:
В концепции благоустройства гармонично сочетаются черты двух городов. Территорию комплекса пронизали стрелы прогулочных бульваров, уменьшенные копии петербургских проспектов. Стремимся, чтобы каждый элемент ЖК был продуман, наполнен комфортом и заботой для всех жителей, включая четырехлапых. В каждой квартире подключен базовый пакет Умная квартира забудьте о беспокойстве о протечке; настройте свои сценарии управления техникой и электричеством; общайтесь с Умной квартирой голосом; Можете легко расширить базовый пакет и подключить дополнительные опции и устройства, чтобы из любой точки мира управляй работой бытовых приборов и систем, например: включайте разогрев ужина; регулируйте яркость яркость света; регулируйте громкость музыки; настраивайте работу теплых полов.
Транспортная доступность:
15 минут пешком до станции Молжаниново (Планерная) , МЦД3. Всего в 7 км от МКАД по Ленинградскому шоссе, сразу после пересечения с Международным шоссе.
Внутренняя инфраструктура:
Для детских игр и отдыха взрослых в квартале предусмотрено множество вариантов уютных московских двориков. Детские зоны отделены от взрослых, спортивные площадки и зоны воркаута с их шумными играми вынесены за пределы дворов. В обустройстве всех зон использованы только экологичные материалы. Оборудование для игровых площадок разрабатывалось с привлечением детских психологов. Для любителей велосипедов проложены велодорожки, ведущие к живописным прудам. Если же вам нужно в магазин, аптеку, а может, просто захотелось посидеть с семьей или друзьями в кафе по соседству - все необходимое расположено на первых этажах зданий с внешней стороны комплекса.[#7533484#]
Ленинградское шоссе, дом 228к4, Москва, Россия
Цена:
17 046 000 руб.
321 623 руб./м²
Общая площадь:53 м²































