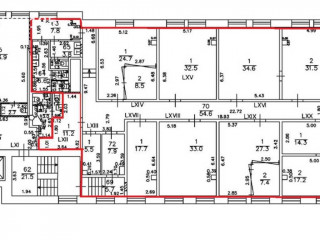
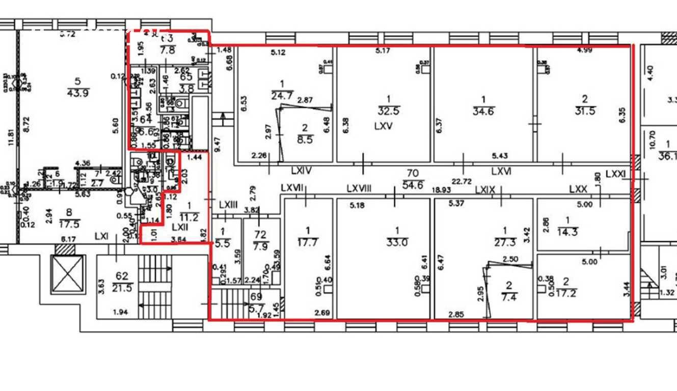
Аренда офиса, 360 м² , Холодильный переулок 3к1с4
Площадь: 360 м²
Цена аренды:
1 207 920 руб./мес
Цена:
3 356 руб./м²/мес

Холодильный переулок, дом
3к1с4,
Москва,
Россия
м. Тульская (2 мин.)
Об объекте
- Этаж расположения помещения
- 4 этаж
- Административный округ
- Южный административный округ
Описание объекта
==ЛОТ 222195 == ОТ СОБСТВЕННИКА, БЕЗ КОМИССИИ. Предложение аренды офисного помещения в лофт-квартале "Товарищество Рябовской Мануфактуры", расположенном в непосредственной близости от станции метро (расстояние составляет 100 метров). Объект недвижимости характеризуется наличием проведенного ремонта, рациональной планировкой пространства, высокими потолками, большими окнами, обеспечивающими достаточную естественную освещенность, а также наличием собственного санузла. Доступ в квартал предоставляется круглосуточно (24/7).
Холодильный переулок, дом 3к1с4, Москва, Россия
Цена аренды:
1 207 920 руб./мес
Общая площадь:360 м²










